Nyelv:
Kezdd el!
Eladó
Kiadó
Tulajdonos vagyok
Ingatlanos vagyok
Zoomlla-funkciók
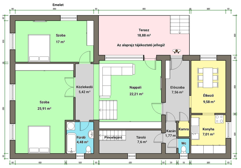
Eladó ház Hatvan 110m2
3000 Hatvan
ID: 106798
54.5 M Ft (138 E Ft/m2)
Terület
394 m2
Hálószobák
3
Ingatlan adatok
Típus: Ház
Terület: 110 m2
Erkély / Terasz területe: 568 m2
Hálószobák: 3
Építés éve: 20+ éve
Ár: 54 500 000 Ft
Ár/m2: 138 E Ft/m2
Emelet: 1+ emelet
Kilátás az ingatlanból: Város
Leírás
Fontos a családod számára a KÉNYELEM és a FELKAPOTT, JÓ KÖRNYÉK? Akkor ezt a lehetőséget ne hagyd ki! Nézd meg mihamarabb!

Új-Hatvanban a BOSCH-hoz közel kínálok eladásra egy 1978-ben TÉGLÁBÓL épült, szinteltolásos, nettó 110 m2-es lakrésszel és 52 m2-es szuterénnel rendelkező családi házat. A telek összközművesített. Az épület alatti GARÁZS 1 db
...
+ Tovább olvasom
Lokáció
3000 Hatvan