Nyelv:
Kezdd el!
Eladó
Kiadó
Tulajdonos vagyok
Ingatlanos vagyok
Zoomlla-funkciók
Eladó ház Acsa 63m2
2683 Acsa
ID: 106771
50.5 M Ft (100 E Ft/m2)
Terület
506 m2
Hálószobák
2
Ingatlan adatok
Típus: Ház
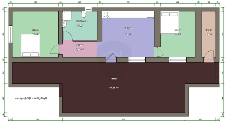
Terület: 63 m2
Erkély / Terasz területe: 885 m2
Hálószobák: 2
Építés éve: 20+ éve
Ár: 50 500 000 Ft
Ár/m2: 100 E Ft/m2
Emelet: 1+ emelet
Leírás
Eladásra kínálunk Acsa csendes utcájában, nem messze a központól egy fulújitott ingatlant.

Tágas udvaron mindenre van lehetőség, legyen szó sűtögetés, bográcsolás, kocsi beállás, de akár gyerekjátékok elhelyezése is alkalmas. Az igényesen felújított ingatlanban két szoba található, egy fürdőszoba és egy konyha, ahol az épített tégla konyhabútor ne
...
+ Tovább olvasom
Lokáció
2683 Acsa