Nyelv:
Kezdd el!
Eladó
Kiadó
Tulajdonos vagyok
Ingatlanos vagyok
Zoomlla-funkciók
Eladó ház Szada 148m2
2111 Szada
ID: 106734
149.9 M Ft (310 E Ft/m2)
Terület
483 m2
Hálószobák
4
Ingatlan adatok
Típus: Ház
Terület: 148 m2
Erkély / Terasz területe: 669 m2
Hálószobák: 4
Építés éve: Max. 5 éve
Ár: 149 900 000 Ft
Ár/m2: 310 E Ft/m2
Emelet: 1+ emelet
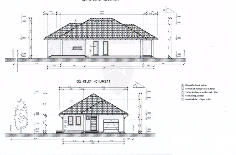
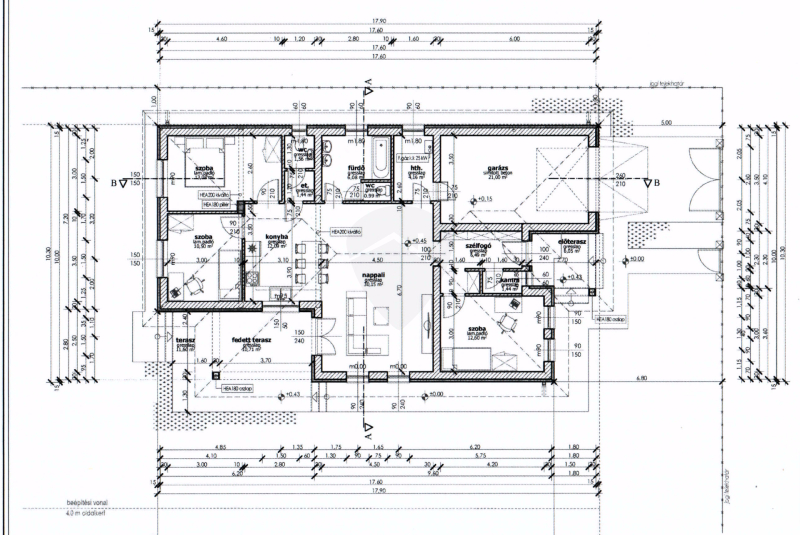
Leírás
Egy modern, világos és prémium kivitelezésű ingatlant keresel a felkapott környéken? Ezt most neked álmodtuk meg! Ingatlanunk a Fenyves Liget utcában található!

! Hátsókert közvetlen érintkezik az erdővel, így gyönyörű panorámával rendelkezik a telek !

Az ingatlan lakütere 101 négyzetméter melyhez tartozik egy 21 négyzetméteres garázs közvetlen
...
+ Tovább olvasom
Lokáció
2111 Szada