Nyelv:
Kezdd el!
Eladó
Kiadó
Tulajdonos vagyok
Ingatlanos vagyok
Zoomlla-funkciók
Eladó lakás Budapest XIV. Alsórákos 10..
1141 Budapest
ID: 106722
129.5 M Ft (1.3 M Ft/m2)
Terület
100 m2
Hálószobák
3
Ingatlan adatok
Típus: Lakás
Terület: 100 m2
Hálószobák: 3
Építés éve: 20+ éve
Ár: 129 490 000 Ft
Ár/m2: 1.3 M Ft/m2
Emelet: Felső szint
Kilátás az ingatlanból: Város
Leírás
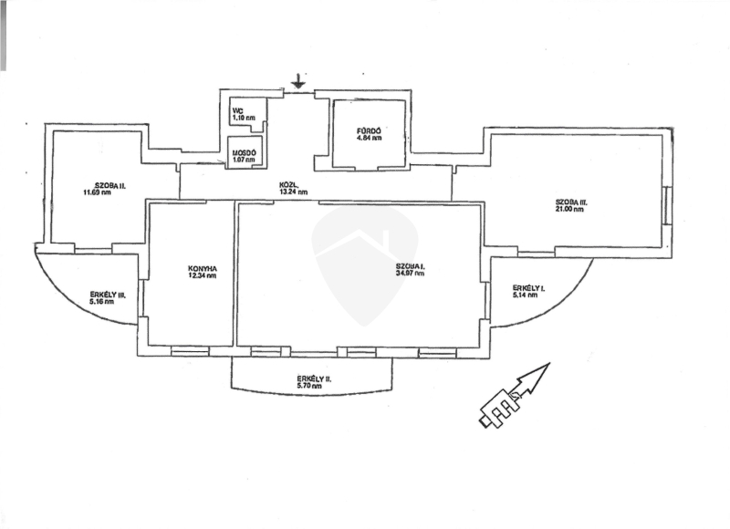
Budapesten a XIV. kerületben, Zugló legkeresettebb zöldövezeti részén kínálom eladásra ezt a szuper, dupla komfortos, 3 erkélyes, bruttó 116 nm-es lakást.

A lakás nappali + 2 szobás (de 3 külön szobássá alakítható). Eredetileg is 4 szobás (nappali + 3 szoba) lakás volt tervezve, de építésnél a tulajdonos már így jelenlegi állapotában kérte, ezzel
...
+ Tovább olvasom
Jellemzők
  • Erkély
Lokáció
1141 Budapest