Nyelv:
Kezdd el!
Eladó
Kiadó
Tulajdonos vagyok
Ingatlanos vagyok
Zoomlla-funkciók
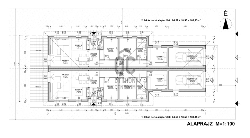
Eladó ház Hajdúsámson 103m2
4251 Hajdúsámson
ID: 106422
67.7 M Ft (221 E Ft/m2)
Terület
306 m2
Hálószobák
4
Ingatlan adatok
Típus: Ház
Terület: 103 m2
Erkély / Terasz területe: 406 m2
Hálószobák: 4
Építés éve: Max. 5 éve
Ár: 67 700 000 Ft
Ár/m2: 221 E Ft/m2
Emelet: 1+ emelet
Leírás
Álomotthon Hajdúsámsonban – ne maradjon le róla!
Új építésű, modern ikerház eladó, amely minden igényt kielégít: tágas, világos, energiatakarékos és családbarát. Legyen Ön az első lakója!

Lakótér és elrendezés:
- 84,59 m² nettó hasznos lakóterület + 18,56 m²-es garázs
- amerikai konyhás, hatalmas nappali, ahol a család és barátok együtt lehetnek
-
...
+ Tovább olvasom
Lokáció
4251 Hajdúsámson