Nyelv:
Kezdd el!
Eladó
Kiadó
Tulajdonos vagyok
Ingatlanos vagyok
Zoomlla-funkciók
Eladó ház Budapest XI. Kelenvölgy 340m..
1116 Budapest
ID: 106260
350 M Ft (586 E Ft/m2)
Terület
597 m2
Hálószobák
9
Ingatlan adatok
Típus: Ház
Terület: 340 m2
Erkély / Terasz területe: 514 m2
Hálószobák: 9
Építés éve: 20+ éve
Ár: 350 000 000 Ft
Ár/m2: 586 E Ft/m2
Emelet: 1+ emelet
Leírás
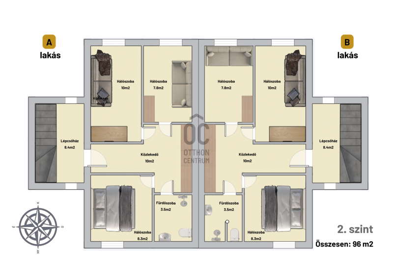
340 m2-es, 4 szintes ikerház keresi új tulajdonosát Budapest XI. kerületében, Kelenvölgyben, ahol a kertváros nyugalma találkozik a főváros kényelmével. Ha olyan ingatlant keres, ahol több generáció kényelmesen és teljesen szeparáltan tud együtt élni, akkor ezt a házat feltétlenül nézze meg!

KÖRNYÉK ÉS KÖZLEKEDÉS:
- Budapest XI. kerület, Kelenvölg
...
+ Tovább olvasom
Lokáció
1116 Budapest