ID: 106205
						
						
								
								
									89.9 M Ft								
								
																	
										(301 E Ft/m2)
									
																	
							
							
						
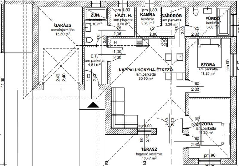
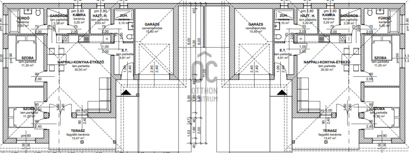
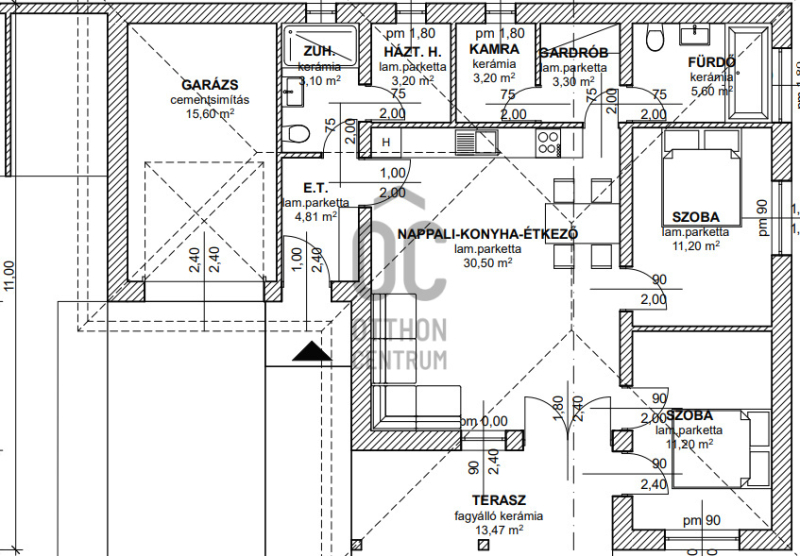
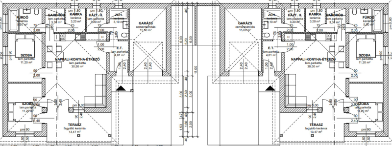
							Ingatlan adatok						
				
						| Típus: | Ház | 
| Terület: | 99 m2 | 
| Erkély / Terasz területe: | 400 m2 | 
| Hálószobák: | 3 | 
| Építés éve: | Max. 5 éve | 
| Ár: | 89 900 000 Ft | 
| Ár/m2: | 301 E Ft/m2 | 
| Emelet: | 1+ emelet | 
								Leírás							
								
																KIEMELT AJÁNLAT!Kiváló referenciákkal!
A fényképeken korábban értékesített referenciák láthatók.
A látványtervek és a telekről készült képek mutatják a jelenlegi ingatlant.
ÚJONNAN ÉPÜLŐ LAKÓPARKBAN, a Waldorf iskolától 2 utcára épül ez az ÚJÉPÍTÉSŰ IKERHÁZ.
Egymással mindössze egy tárolónál érintkezve, teljesen SZEPARÁLT KERTRÉSZEKKEL.
A hely...
 + Tovább olvasom 
																
														
						
								Lokáció							
							
							2151 Fót
							
																
																
						 
						 
					 
																			 
									
			 
									
			 
									
			