Nyelv:
Kezdd el!
Eladó
Kiadó
Tulajdonos vagyok
Ingatlanos vagyok
Zoomlla-funkciók
Eladó lakás Budapest XIV. Alsórákos 83..
1149 Budapest
ID: 106193
160 M Ft (1.9 M Ft/m2)
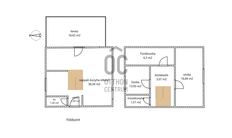
Terület
83 m2
Hálószobák
3
Ingatlan adatok
Típus: Lakás
Terület: 83 m2
Hálószobák: 3
Építés éve: Max. 10 éve
Ár: 160 000 000 Ft
Ár/m2: 1.9 M Ft/m2
Emelet: 1+ emelet
Kilátás az ingatlanból: Város
Leírás
Otthon, ahol a család minden tagja megtalálja a helyét – Zugló szívében, Alsórákoson



Képzeld el, ahogy a gyerekek biztonságban játszanak a saját kertedben, miközben Te egy kávéval a kezedben élvezed a nyugalmat – mindezt Budapest egyik legkedveltebb kertvárosi részén, Zuglóban!



Ez a 2019-ben épült, 83 m²-es, belső kétszintes, kertkapcsolatos
...
+ Tovább olvasom
Lokáció
1149 Budapest