Nyelv:
Kezdd el!
Eladó
Kiadó
Tulajdonos vagyok
Ingatlanos vagyok
Zoomlla-funkciók
Kiadó ház Budapest VIII. Tisztviselőte..
1089 Budapest
ID: 106085
900 E Ft /hó
Terület
330 m2
Hálószobák
0
Ingatlan adatok
Típus:
Terület: 330 m2
Hálószobák: 0
Építés éve: 20+ éve
Ár: 900 000 Ft
Emelet: Felső szint
Beköltözhető ekkortól: Elérhető
Leírás
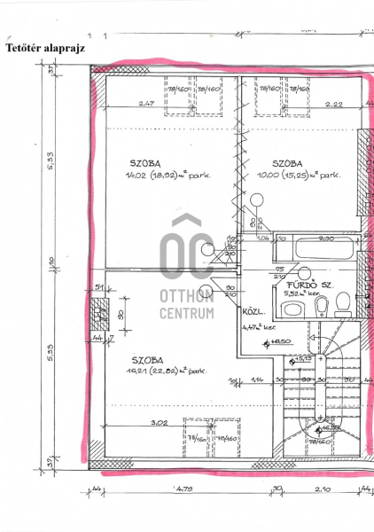
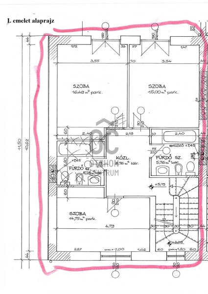
Budapest egyik legkülönlegesebb városrészében, a Tisztviselőtelep műemléki villanegyedében, a Bíró Lajos utcában kiadó egy 330 m² alapterületű, többszintes irodaépület-rész. A környék ritka adottsága, hogy zöldövezeti nyugalmat kínál, miközben a belváros és a fő közlekedési útvonalak is gyorsan elérhetők.

Az ingatlan egy 2002-ben épült, kívül-belü
...
+ Tovább olvasom
Lokáció
1089 Budapest