Nyelv:
Kezdd el!
Eladó
Kiadó
Tulajdonos vagyok
Ingatlanos vagyok
Zoomlla-funkciók
Eladó ház Szigetszentmiklós Ófalu 196m..
2310 Szigetszentmiklós
ID: 105877
149.9 M Ft (318 E Ft/m2)
Terület
471 m2
Hálószobák
6
Ingatlan adatok
Típus: Ház
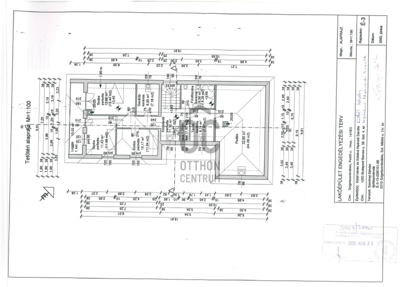
Terület: 196 m2
Erkély / Terasz területe: 550 m2
Hálószobák: 6
Építés éve: 20+ éve
Ár: 149 900 000 Ft
Ár/m2: 318 E Ft/m2
Emelet: 1+ emelet
Leírás
Családi ház eladó Szigetszentmiklóson – medencével, napelemmel, garázzsal és gondozott kerttel

Szigetszentmiklóson, egy magánútról nyíló, zöldövezeti részen kínálunk megvételre egy 2003-ban épült, kétszintes családi házat, 550 m²-es, szépen karbantartott telken.

Az ingatlan hasznos alapterülete 198 m², melyhez 30 m²-es fedett terasz és egy 10 m²-
...
+ Tovább olvasom
Lokáció
2310 Szigetszentmiklós