Nyelv:
Kezdd el!
Eladó
Kiadó
Tulajdonos vagyok
Ingatlanos vagyok
Zoomlla-funkciók
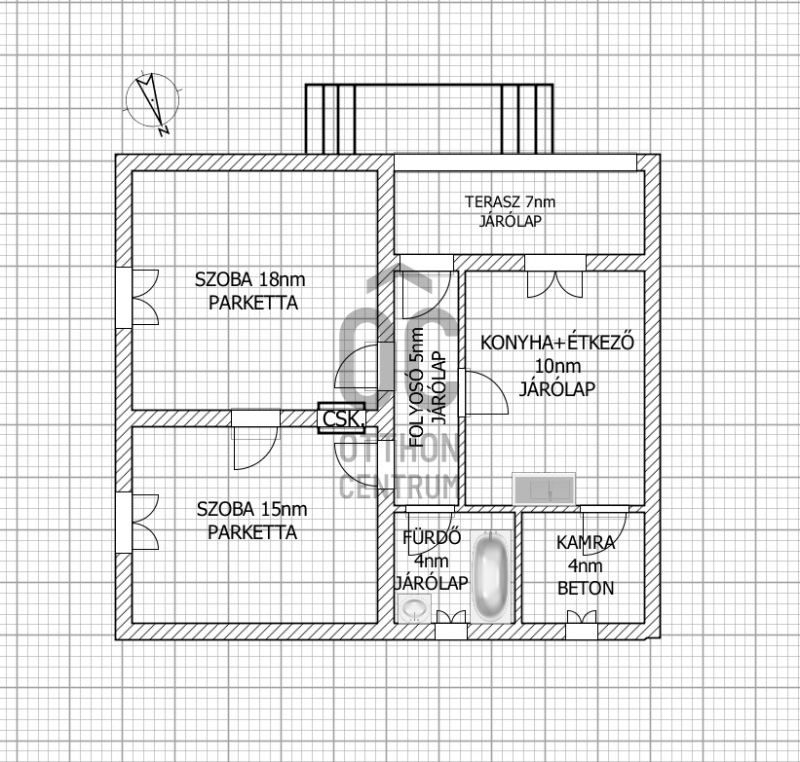
Eladó ház Kunmadaras 63m2
5321 Kunmadaras
ID: 105594
5.9 M Ft (12 E Ft/m2)
Terület
499 m2
Hálószobák
2
Ingatlan adatok
Típus: Ház
Terület: 63 m2
Erkély / Terasz területe: 872 m2
Hálószobák: 2
Építés éve: 20+ éve
Ár: 5 900 000 Ft
Ár/m2: 12 E Ft/m2
Emelet: 1+ emelet
Leírás
Figyelem, jó lehetőség Kunmadarason! Az ingatlanpiac egyik legizgalmasabb lehetősége vár Önre Kunmadarason, Jász-Nagykun-Szolnok vármegyében. Kínálatunkban egy használt ház áll rendelkezésére, amely nemcsak komfortos otthont, hanem egy remek befektetési lehetőséget is kínál. Az ingatlan alapterülete 63 négyzetméter, míg a telek mérete 872 négyzetmé...
+ Tovább olvasom
Lokáció
5321 Kunmadaras