Nyelv:
Kezdd el!
Eladó
Kiadó
Tulajdonos vagyok
Ingatlanos vagyok
Zoomlla-funkciók
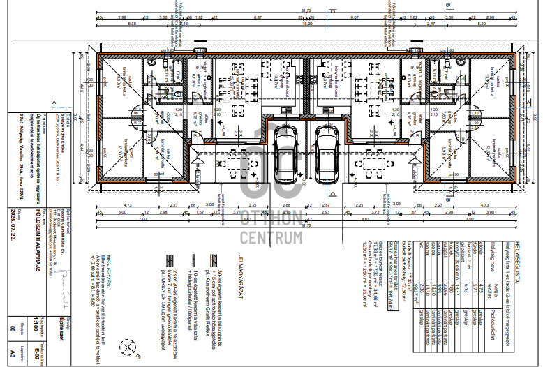
Eladó ház Sülysáp 100m2
2241 Sülysáp
ID: 105557
80 M Ft (291 E Ft/m2)
Terület
275 m2
Hálószobák
4
Ingatlan adatok
Típus: Ház
Terület: 100 m2
Erkély / Terasz területe: 350 m2
Hálószobák: 4
Építés éve: Max. 5 éve
Ár: 80 000 000 Ft
Ár/m2: 291 E Ft/m2
Emelet: 1+ emelet
Leírás
Sülysáp Pest megyében található város, a Nagykátai járáshoz tartozik.

Budapesttől 50km, autópályán kényelmesen megközelíthető. Vonattal a Kökitől kb.60 percnyi távolságra.
Nagyobb városok a közelben Cegléd és Nagykáta.
Az eladó ingatlan a 21.századi korszerű energia takarékos elvárásoknak maximálisan megfelel.
A+ kategóriájú, padlóban és falban e
...
+ Tovább olvasom
Lokáció
2241 Sülysáp