Nyelv:
Kezdd el!
Eladó
Kiadó
Tulajdonos vagyok
Ingatlanos vagyok
Zoomlla-funkciók
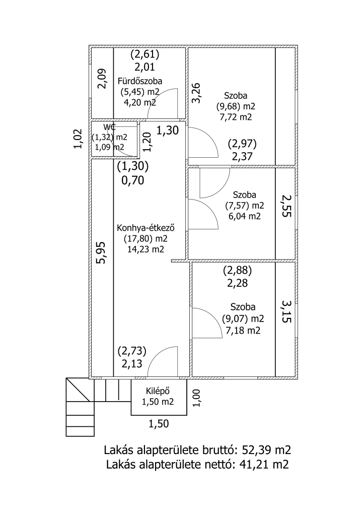
Eladó lakás Budapest XVI. 42m2
1162 Budapest
ID: 105373
59.9 M Ft (1.4 M Ft/m2)
Terület
42 m2
Hálószobák
1+3
Ingatlan adatok
Típus: Lakás
Terület: 42 m2
Hálószobák: 1+3
Építés éve: 20+ éve
Ár: 59 900 000 Ft
Ár/m2: 1.4 M Ft/m2
Emelet: 1+ emelet
Leírás
Panorámás tetőtéri lakás kertvárosi nyugalomban!

Eladó egy világos, tégla építésű családi ház tetőterében található lakás, csodás panorámával. A lakás 3 félszobás, nagy amerikai konyhás-étkezős nappalival, külön fürdővel és WC-vel.

A fűtésről korszerű gáz kondenzációs kazán gondoskodik. Az ingatlan jelenleg közepes állapotú, így kiváló lehetőség,
...
+ Tovább olvasom
Lokáció
1162 Budapest