Nyelv:
Kezdd el!
Eladó
Kiadó
Tulajdonos vagyok
Ingatlanos vagyok
Zoomlla-funkciók
Eladó lakás Balatonfüred 81m2
8230 Balatonfüred
ID: 105348
190 M Ft (2.3 M Ft/m2)
Terület
81 m2
Hálószobák
3
Ingatlan adatok
Típus: Lakás
Terület: 81 m2
Hálószobák: 3
Építés éve: Max. 5 éve
Ár: 190 000 000 Ft
Ár/m2: 2.3 M Ft/m2
Emelet: 1+ emelet
Kilátás az ingatlanból: Park
Leírás
Balatonfüreden, a Tamás-hegyi kereszt alatt, csendes -nyugodt pihenésre tökéletes hely a Panoráma Residence! A Balaton part, Tagore sétány 5 percautóval.

Kitűnő választás új otthonak – életvitelszerűen, vagy nyaralóként pihenésre, feltöltődésre, de jó hozammal működő, piac képes befektetés is realizálható.

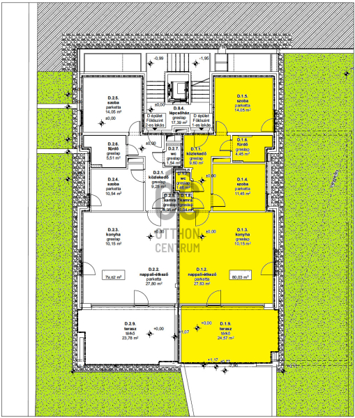
A lakópark 2020-ban átadott D épületében
...
+ Tovább olvasom
Lokáció
8230 Balatonfüred