Nyelv:
Kezdd el!
Eladó
Kiadó
Tulajdonos vagyok
Ingatlanos vagyok
Zoomlla-funkciók
Eladó lakás Budapest II. Rózsadomb 44m..
1023 Budapest, Vérhalom utca
ID: 105326
109.2 M Ft (2.5 M Ft/m2)
Terület
44 m2
Hálószobák
1
Ingatlan adatok
Típus: Lakás
Terület: 44 m2
Hálószobák: 1
Építés éve: 20+ éve
Ár: 109 200 000 Ft
Ár/m2: 2.5 M Ft/m2
Emelet: 1+ emelet
Kilátás az ingatlanból: Park
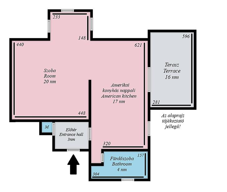
Leírás
Budapest II. kerületének egyik legkedveltebb részén, a Vérhalom téren kínálunk megvételre egy stílusosan felújított, földszinti lakást. Az ingatlan egy csendes, zöldövezeti utcában található, így ideális választás mindazoknak, akik nyugodt környezetre vágynak, ugyanakkor nem szeretnének lemondani a belváros közelségéről sem.



A 44 m²-es laká
...
+ Tovább olvasom
Lokáció
1023 Budapest, Vérhalom utca