Nyelv:
Kezdd el!
Eladó
Kiadó
Tulajdonos vagyok
Ingatlanos vagyok
Zoomlla-funkciók
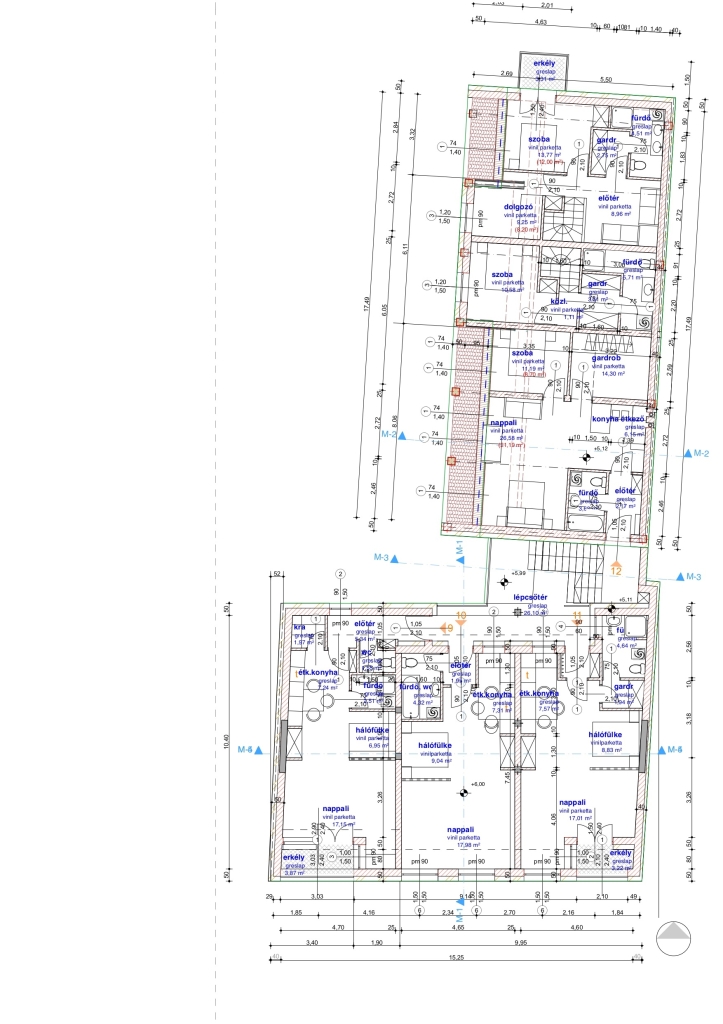
Eladó lakás Kaposvár 57m2
7400 Kaposvár
ID: 105203
49.7 M Ft (872 E Ft/m2)
Terület
57 m2
Hálószobák
2
Ingatlan adatok
Típus: Lakás
Terület: 57 m2
Hálószobák: 2
Építés éve: Max. 5 éve
Ár: 49 694 400 Ft
Ár/m2: 872 E Ft/m2
Emelet: 1+ emelet
Kilátás az ingatlanból: Belső udvar
Leírás
Befektetők, otthonkeresők figyelem, hiányt pótló építkezés Kaposvár belvárosában!

Kaposváron megújuló környezetben, a Fő utca 91. szám alatt megvalósuló 15 lakásos társasház a mai kor igényeire és elvárásaira szabva a legkorszerűbb energetikával, kizárólag minőségi anyagok felhasználásával épül -megújuló energiaforrást is alkalmazva- egy hangulat
...
+ Tovább olvasom
Lokáció
7400 Kaposvár