Nyelv:
Kezdd el!
Eladó
Kiadó
Tulajdonos vagyok
Ingatlanos vagyok
Zoomlla-funkciók
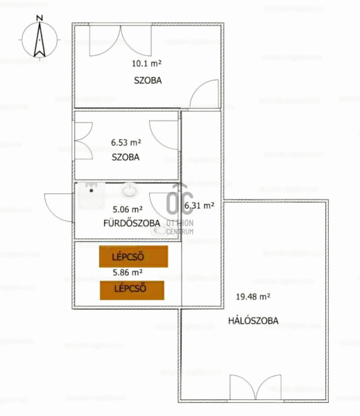
Eladó ház Sajószentpéter 140m2
3770 Sajószentpéter
ID: 105159
34.9 M Ft (44 E Ft/m2)
Terület
794 m2
Hálószobák
4
Ingatlan adatok
Típus: Ház
Terület: 140 m2
Erkély / Terasz területe: 1307 m2
Hálószobák: 4
Építés éve: 20+ éve
Ár: 34 900 000 Ft
Ár/m2: 44 E Ft/m2
Emelet: 1+ emelet
Leírás
Sajószentpéter csendes, kertvárosi övezetében kínáljuk eladásra ezt a kivételes, jó elosztású 140 nm-es, használt sorházi lakást, amely ideális választás lehet családosok számára.
Az ingatlan egy 1307 nm-es telken helyezkedik el, így teret biztosít a gyermekek számára a szabadban való játékra, valamint a kertészkedésre vágyóknak is.
A lakás 3 k
...
+ Tovább olvasom
Lokáció
3770 Sajószentpéter