Nyelv:
Kezdd el!
Eladó
Kiadó
Tulajdonos vagyok
Ingatlanos vagyok
Zoomlla-funkciók
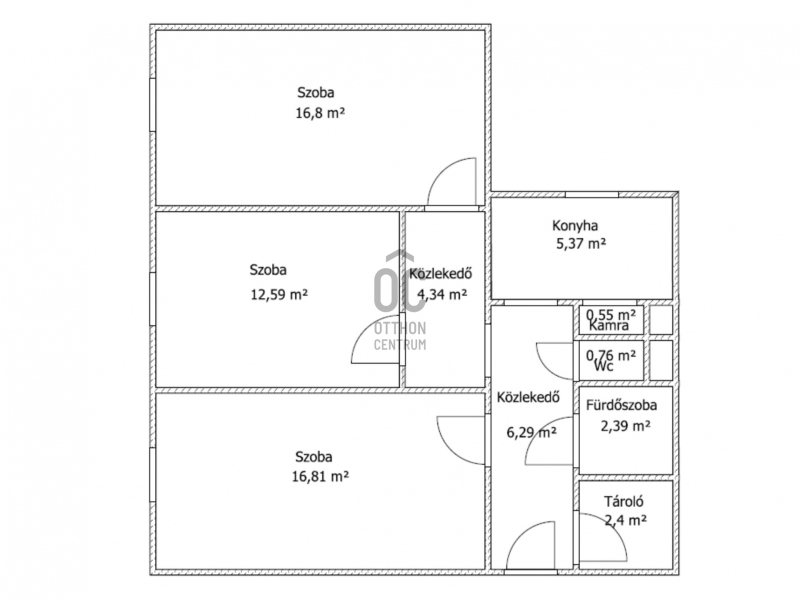
Eladó lakás Budapest III. Óbuda 68m2
1035 Budapest
ID: 105083
82.5 M Ft (1.2 M Ft/m2)
Terület
68 m2
Hálószobák
3
Ingatlan adatok
Típus: Lakás
Terület: 68 m2
Hálószobák: 3
Építés éve: 20+ éve
Ár: 82 500 000 Ft
Ár/m2: 1.2 M Ft/m2
Emelet: Felső szint
Kilátás az ingatlanból: Város
Leírás
Eladásra kínálunk egy jó állapotú, felújított, 3 szobás panel lakást, Óbuda központi részén.
A fürdő és a wc tavaly lett felújítva, az elektromos hálózat, a nyílászárók, a parketta és a konyha pedig korábban.
Az ingatlan a 3%-os hitel feltételeinek megfelel!

A lakás főbb előnyei és tulajdonságai:
- 3 külön nyíló, egész szoba
- Keleti fekvés
- Klím
...
+ Tovább olvasom
Lokáció
1035 Budapest