Nyelv:
Kezdd el!
Eladó
Kiadó
Tulajdonos vagyok
Ingatlanos vagyok
Zoomlla-funkciók
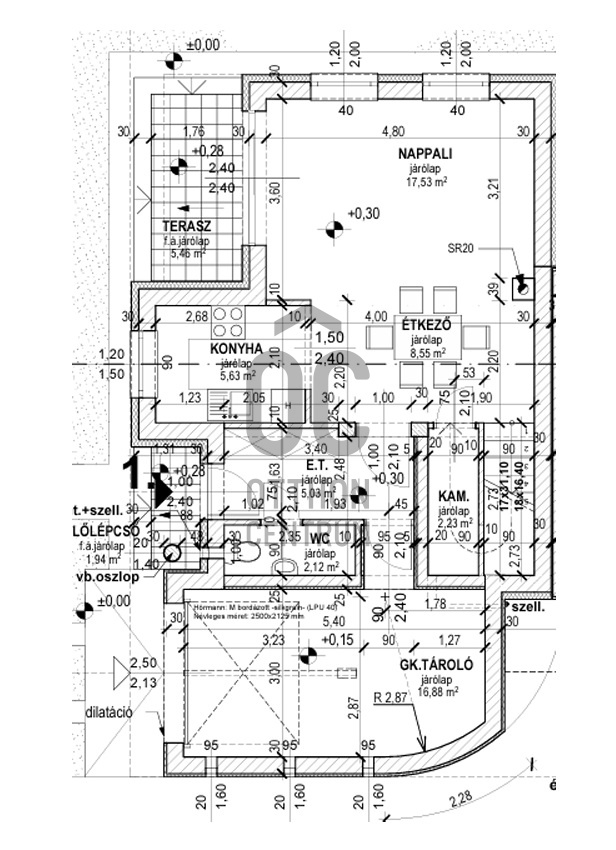
Eladó ház Debrecen 125m2
4031 Debrecen
ID: 105080
129 M Ft (469 E Ft/m2)
Terület
275 m2
Hálószobák
4
Ingatlan adatok
Típus: Ház
Terület: 125 m2
Erkély / Terasz területe: 300 m2
Hálószobák: 4
Építés éve: Max. 10 éve
Ár: 129 000 000 Ft
Ár/m2: 469 E Ft/m2
Emelet: 1+ emelet
Leírás
Debrecen Hatvan utcai kerti részén, gyönyörű, modern környezetben, nappali+ 3 hálószobás ikerház, gondozott kerttel eladó!

Kiváló lokáció, kedvelt, sokak által előnyben részesített környezet.
A belváros közelsége, illetve a nyugati városrész bevásárló üzleteinek rövid megközelíthetősége, és az autópálya gyors elérése is hatalmas előnyökkel jár az
...
+ Tovább olvasom
Lokáció
4031 Debrecen