Nyelv:
Kezdd el!
Eladó
Kiadó
Tulajdonos vagyok
Ingatlanos vagyok
Zoomlla-funkciók
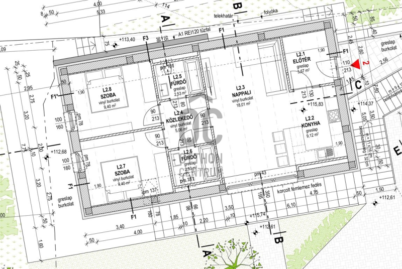
Eladó lakás Paks Óváros 60m2
7030 Paks
ID: 105046
77 M Ft (1.3 M Ft/m2)
Terület
60 m2
Hálószobák
3
Ingatlan adatok
Típus: Lakás
Terület: 60 m2
Hálószobák: 3
Építés éve: Max. 5 éve
Ár: 77 000 000 Ft
Ár/m2: 1.3 M Ft/m2
Emelet: 1+ emelet
Kilátás az ingatlanból: Belső udvar
Leírás
Paks csendes utcájában luxus minőségű, újépítésű lakás eladó.

Szereti a kényelmet és a csendet, a tágas, világos tereket? Szeretne egy minőségi otthont a családjának extrákkal?
Ezt a lakást Önnek ajánlom!
Az ingatlan téglából épül, minőségi alapanyagok felhasználásával egy többszörös szakmai díjnyertes vállalkozás kivitelezésével. Hogy milyen le
...
+ Tovább olvasom
Lokáció
7030 Paks