Nyelv:
Kezdd el!
Eladó
Kiadó
Tulajdonos vagyok
Ingatlanos vagyok
Zoomlla-funkciók
Eladó ház Gyál 137m2
2360 Gyál
ID: 105042
127 M Ft (534 E Ft/m2)
Terület
238 m2
Hálószobák
5
Ingatlan adatok
Típus: Ház
Terület: 137 m2
Erkély / Terasz területe: 201 m2
Hálószobák: 5
Építés éve: Max. 5 éve
Ár: 126 990 000 Ft
Ár/m2: 534 E Ft/m2
Emelet: 1+ emelet
Leírás
Megvételre kínálunk Gyálon csendes kis utcában ikerház felét.
A 2 lakásos lakóépület saját garázzsal és saját kert résszel rendelkezik.
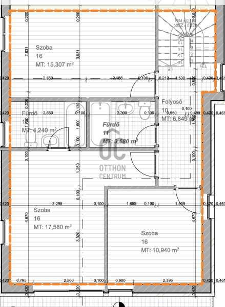
Az építkezés jelen szakaszában igény szerint választható a nappali+3 hálószoba vagy a nappali+ 4 szoba kialakítás, illetve a burkolatok, a beltéri ajtók és a gépesített konyha választható.

Az ingatlan Gyál család
...
+ Tovább olvasom
Lokáció
2360 Gyál