Nyelv:
Kezdd el!
Eladó
Kiadó
Tulajdonos vagyok
Ingatlanos vagyok
Zoomlla-funkciók
Eladó ház Bocskaikert 91m2
4241 Bocskaikert
ID: 105003
68 M Ft (149 E Ft/m2)
Terület
456 m2
Hálószobák
3
Ingatlan adatok
Típus: Ház
Terület: 91 m2
Erkély / Terasz területe: 730 m2
Hálószobák: 3
Építés éve: Max. 5 éve
Ár: 68 000 000 Ft
Ár/m2: 149 E Ft/m2
Emelet: 1+ emelet
Leírás
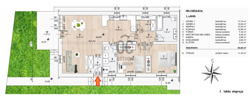
1. lakás 86 nm + 11 nm terasz:

- nappali - étkezővel, teraszkapcsolattal
- konyha
- kamra
- közlekedő
- 2 db hálószoba (11, 13 nm)
- 2 db fürdőszoba
- előszoba
Projekt bemutatása

ÚJ ÉPÍTÉS - 1 SZINTEN - NAPPALI + 2 HÁLÓ = 68 MFt

1. lakás Br.97 nm egy szinten utcafronti elhelyezkedéssel:

- amerikaikonyhás nappali
- 2 hálószoba
- 2 fürdőszoba
-
...
+ Tovább olvasom
Lokáció
4241 Bocskaikert