Nyelv:
Kezdd el!
Eladó
Kiadó
Tulajdonos vagyok
Ingatlanos vagyok
Zoomlla-funkciók
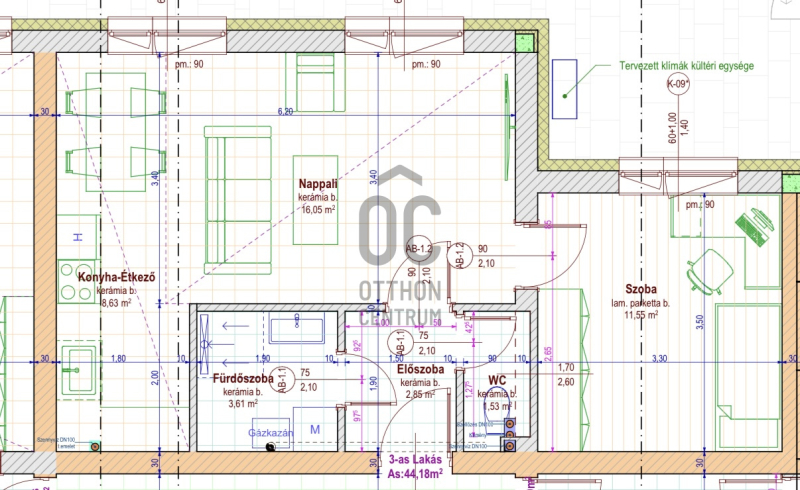
Eladó lakás Nyíregyháza Belváros 44m2..
4400 Nyíregyháza
ID: 104940
48.6 M Ft (1.1 M Ft/m2)
Terület
44 m2
Hálószobák
2
Ingatlan adatok
Típus: Lakás
Terület: 44 m2
Hálószobák: 2
Építés éve: Max. 5 éve
Ár: 48 598 000 Ft
Ár/m2: 1.1 M Ft/m2
Emelet: Felső szint
Kilátás az ingatlanból: Város
Leírás
Az ingatlan főbb jellemzői:
- N+F 30 tégla falazat
- 15 cm homlokzati szigetelés
- A lakásokat elválasztó fal magas hanggátlású Porotherm 30 AKU Z téglával készül, 30 cm vastagságban.
- Kondenzációs gázkazán, padlófűtés,
- Minden lakásban Klíma
- 3 rétegű műanyag külső nyílászárók kívül antracit szürke színben,
- Burkolatok: laminált parketta, ker
...
+ Tovább olvasom
Lokáció
4400 Nyíregyháza