Nyelv:
Kezdd el!
Eladó
Kiadó
Tulajdonos vagyok
Ingatlanos vagyok
Zoomlla-funkciók
Eladó ház Kóka 95m2
2243 Kóka
ID: 104668
59.9 M Ft (126 E Ft/m2)
Terület
475 m2
Hálószobák
4
Ingatlan adatok
Típus: Ház
Terület: 95 m2
Erkély / Terasz területe: 760 m2
Hálószobák: 4
Építés éve: Max. 5 éve
Ár: 59 900 000 Ft
Ár/m2: 126 E Ft/m2
Garázs: 1
Emelet: 1+ emelet
Kilátás az ingatlanból: Park
Leírás
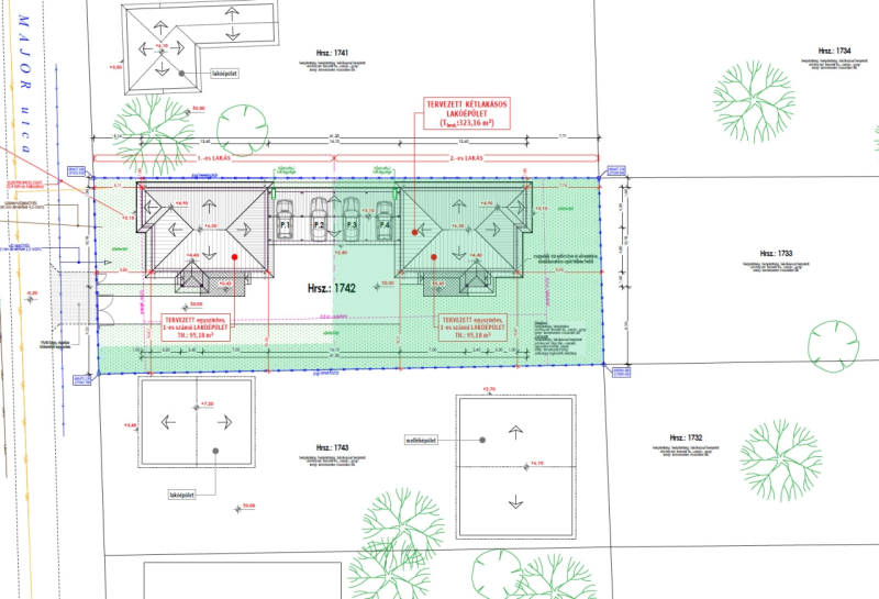
Kókán a Major utca 13. szám alatt, nettó 95,14 m2-es három szoba + amerikai konyhás nappalival rendelkező, energiahatékony ikerházfelek eladók, számos referenciával rendelkező kivitelezőtől!

A hirdetési képek között egy korábbi, már értékesített referencia ingatlan is szerepel.

Az utcafronti ingatlan 455 m2-es, a hátsó ingatlan 760 m2-es telkerés
...
+ Tovább olvasom
Lokáció
2243 Kóka