Nyelv:
Kezdd el!
Eladó
Kiadó
Tulajdonos vagyok
Ingatlanos vagyok
Zoomlla-funkciók
Eladó ház Budapest XXI. Csepel Kertvár..
1215 Budapest, Csepel-Kertváros
ID: 104648
27 M Ft (386 E Ft/m2)
Terület
70 m2
Hálószobák
1
Ingatlan adatok
Típus: Ház
Terület: 30 m2
Erkély / Terasz területe: 80 m2
Hálószobák: 1
Építés éve: 20+ éve
Ár: 27 000 000 Ft
Ár/m2: 386 E Ft/m2
Emelet: 1+ emelet
Kilátás az ingatlanból: Park
Leírás
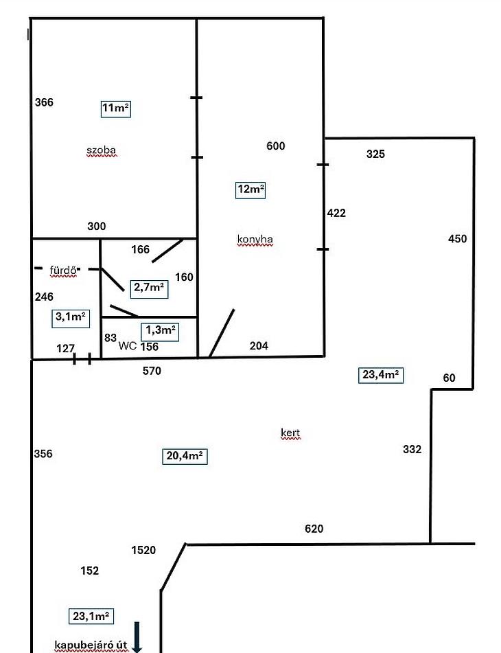
Csepel kertvárosában kínálunk megvételre egy 30 négyzetméteres, különálló kis házat saját kertrésszel.





Az ingatlan szigetelt, műanyag nyílászárókkal felszerelt, egy szobából áll, és külön mérőórákkal rendelkezik, így rezsije jól átlátható. A ház csendes, nyugodt utcában helyezkedik el, barátságos szomszédságban.



A közelben minden megtalál
...
+ Tovább olvasom
Lokáció
1215 Budapest, Csepel-Kertváros