Nyelv:
Kezdd el!
Eladó
Kiadó
Tulajdonos vagyok
Ingatlanos vagyok
Zoomlla-funkciók
Eladó ház Nyíregyháza 122m2
4405 Nyíregyháza
ID: 104615
79.9 M Ft (195 E Ft/m2)
Terület
409 m2
Hálószobák
4
Ingatlan adatok
Típus: Ház
Terület: 122 m2
Erkély / Terasz területe: 573 m2
Hálószobák: 4
Építés éve: Max. 5 éve
Ár: 79 900 000 Ft
Ár/m2: 195 E Ft/m2
Emelet: 1+ emelet
Leírás
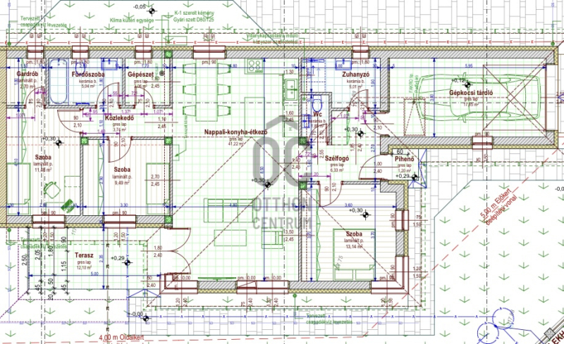
Eladó Nyíregyháza-Borbánya, a Tünde utca közelében egy új építésű, modern ikerház , amely minden igényt kielégítő kialakítással, kiváló minőségű anyagokkal épül.

Alapterület: 120,38 m²
Telek: 573 m²
Szobák: 3 hálószoba + amerikai konyhás nappali
Fürdőszobák: 2 fürdőszoba + külön WC
Garázs: 17,7 m² (térkövezett beállóval)
Gardrób: külön helyiségkén
...
+ Tovább olvasom
Lokáció
4405 Nyíregyháza