Nyelv:
Kezdd el!
Eladó
Kiadó
Tulajdonos vagyok
Ingatlanos vagyok
Zoomlla-funkciók
Eladó lakás Budapest XIII. Lőportárdűl..
1134 Budapest
ID: 104172
120 M Ft (1.2 M Ft/m2)
Terület
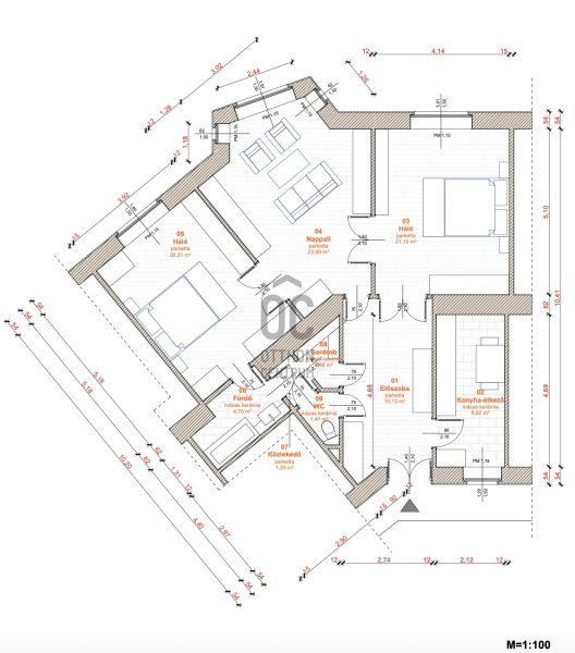
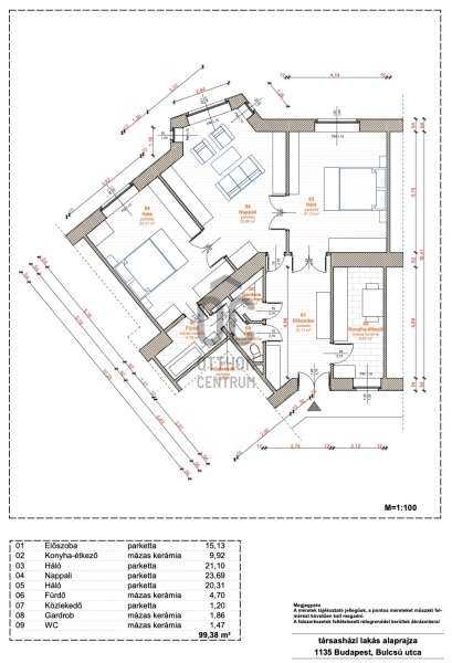
98 m2
Hálószobák
3
Ingatlan adatok
Típus: Lakás
Terület: 98 m2
Hálószobák: 3
Építés éve: 20+ éve
Ár: 120 000 000 Ft
Ár/m2: 1.2 M Ft/m2
Emelet: Felső szint
Kilátás az ingatlanból: Város
Leírás
Fedezze fel ezt a különleges, használt lakást Budapest 13. kerületében, Lőportárdűlő szívében, a Bulcsú utcában a Lehel csarnok közelében!
A ház a századforduló végén épült és nagy belmagasságú, igazán impozáns a 3,8m belmagasságával.

Ez a 98 négyzetméteres, tágas nappalival rendelkező ingatlan ideális választás fiatal felnőttek számára, befektet
...
+ Tovább olvasom
Lokáció
1134 Budapest