Nyelv:
Kezdd el!
Eladó
Kiadó
Tulajdonos vagyok
Ingatlanos vagyok
Zoomlla-funkciók
Eladó lakás Budapest VII. 64m2
1073 Budapest
ID: 104114
153 M Ft (2.4 M Ft/m2)
Terület
64 m2
Hálószobák
3
Ingatlan adatok
Típus: Lakás
Terület: 64 m2
Hálószobák: 3
Építés éve: Max. 5 éve
Ár: 153 031 500 Ft
Ár/m2: 2.4 M Ft/m2
Emelet: Felső szint
Kilátás az ingatlanból: Park
Leírás
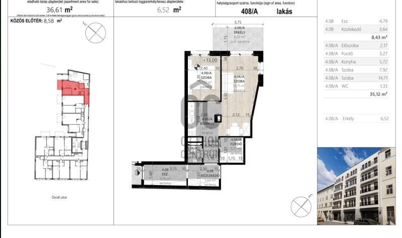
Befektetőknek! Az ingatlan az 5. emeleten található. Kertre néző. Egy helyrajzi számon két különálló ingatlan került kialakításra.
Egy garzon és egy nappali + 1 hálós lakás. 70.242.900 Ft, 82.788.600 Ft. Ügyvédi megosztással külön is megvásárolhatók.
Projekt bemutatása

A belváros egyik legjobb részén a Blaha Lujza tér szomszédságában nappali 1 hál
...
+ Tovább olvasom
Jellemzők
  • Erkély
Lokáció
1073 Budapest