Nyelv:
Kezdd el!
Eladó
Kiadó
Tulajdonos vagyok
Ingatlanos vagyok
Zoomlla-funkciók
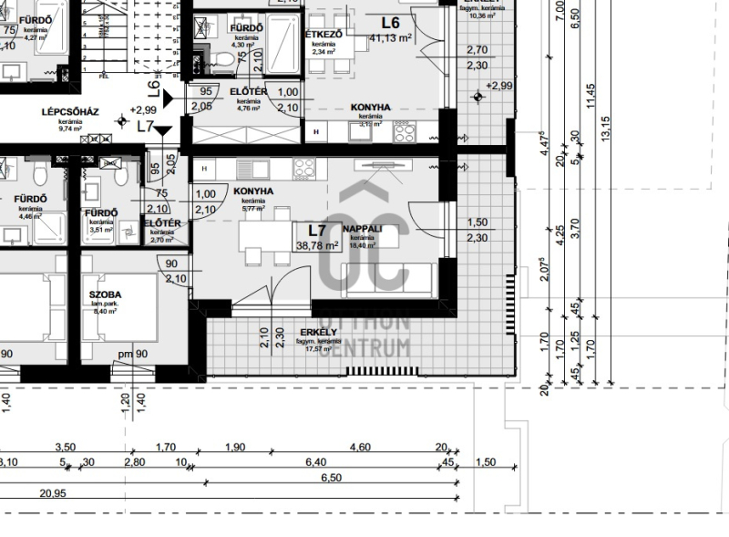
Eladó lakás Balatonudvari 39m2
8242 Balatonudvari
ID: 104109
66.9 M Ft (1.7 M Ft/m2)
Terület
39 m2
Hálószobák
2
Ingatlan adatok
Típus: Lakás
Terület: 39 m2
Hálószobák: 2
Építés éve: Max. 5 éve
Ár: 66 900 000 Ft
Ár/m2: 1.7 M Ft/m2
Emelet: Felső szint
Kilátás az ingatlanból: Park
Leírás
Projekt bemutatása

Balatonudvari-Fövenyes kiváló, pihenésre alkalmas település, nagy és kényelmes strandja vonzó az ott élők és nyaralótulajdonosok körében.
Balatonfüredtől alig 10 perc autóútra eladó új építésű lakásokat kínálunk itt Fövenyesen megvételre.
Egy teljesen új telekalakítású, kiváló helyen és kiváló áron épülő lakóparkban első ütemben
...
+ Tovább olvasom
Jellemzők
  • Erkély
Lokáció
8242 Balatonudvari