Nyelv:
Kezdd el!
Eladó
Kiadó
Tulajdonos vagyok
Ingatlanos vagyok
Zoomlla-funkciók
Eladó lakás Budapest VIII. Corvin negy..
1089 Budapest
ID: 103764
92 M Ft (1.5 M Ft/m2)
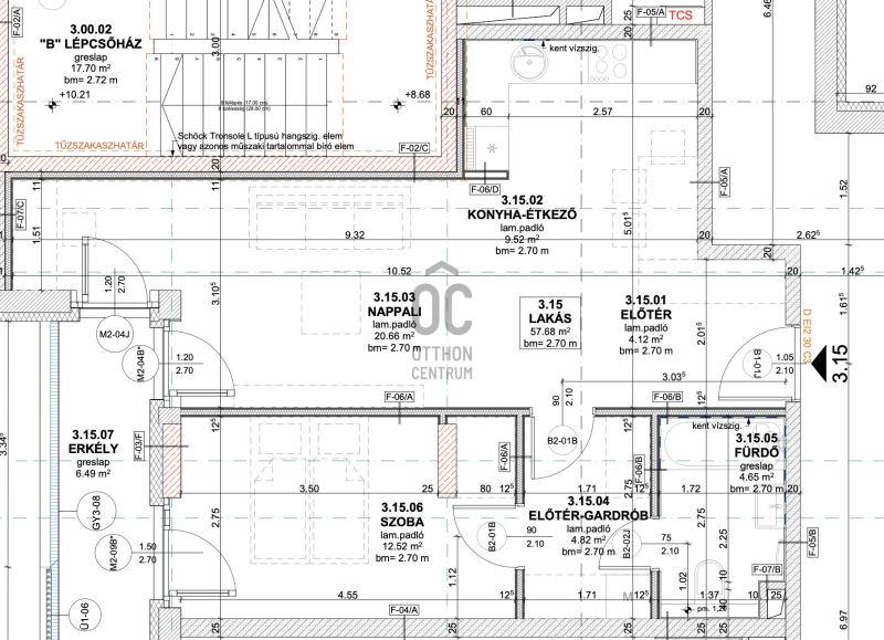
Terület
62 m2
Hálószobák
2
Ingatlan adatok
Típus: Lakás
Terület: 62 m2
Hálószobák: 2
Építés éve: Max. 5 éve
Ár: 92 012 250 Ft
Ár/m2: 1.5 M Ft/m2
Emelet: Felső szint
Kilátás az ingatlanból: Park
Leírás
Új építésű lakások és Wellness Budapest felett
Ez a lakás Nyugati tájolású, csendes belső kertre néz, tágas terek jellemzik.
Erre a lakásra a 3% Otthon Start hitel felvehető. Bővebb információkkal kapcsolatban kérem érdeklődjön telefonon.

Projekt leírás
AZONNAL költözhető, új lakások tetőtéri wellness-részleggel, Budapest egy olyan részén, ahonna
...
+ Tovább olvasom
Lokáció
1089 Budapest