Nyelv:
Kezdd el!
Eladó
Kiadó
Tulajdonos vagyok
Ingatlanos vagyok
Zoomlla-funkciók
Eladó lakás Budapest XV. Rákospalota 6..
1153 Budapest
ID: 103589
77.9 M Ft (1.2 M Ft/m2)
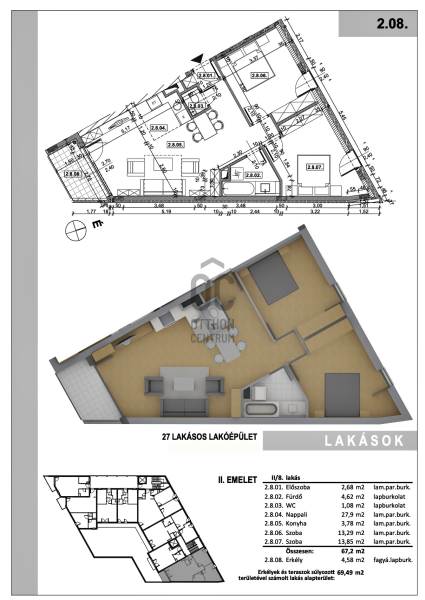
Terület
67 m2
Hálószobák
3
Ingatlan adatok
Típus: Lakás
Terület: 67 m2
Hálószobák: 3
Építés éve: Max. 5 éve
Ár: 77 900 000 Ft
Ár/m2: 1.2 M Ft/m2
Emelet: Felső szint
Kilátás az ingatlanból: Belső udvar
Leírás
Projekt bemutatása

A XV. kerületben várja Önt új otthona!
A lakásokat úgy tervezték, alkották meg, hogy mindenben a 21. század otthonkeresőinek igényeit elégítsék ki.
A lakásokban mennyezet hűtés-fűtés rendszer kerül kialakításra.
Hőszivattyú típusa: H tarifás - Stiebel Eltron típusú levegő- víz vagy
vele azonos minőségű hőszivattyú.
Beépített r
...
+ Tovább olvasom
Jellemzők
  • Erkély
Lokáció
1153 Budapest