Nyelv:
Kezdd el!
Eladó
Kiadó
Tulajdonos vagyok
Ingatlanos vagyok
Zoomlla-funkciók
Eladó ház Albertirsa 63m2
2730 Albertirsa
ID: 103362
69.9 M Ft (225 E Ft/m2)
Terület
311 m2
Hálószobák
2
Ingatlan adatok
Típus: Ház
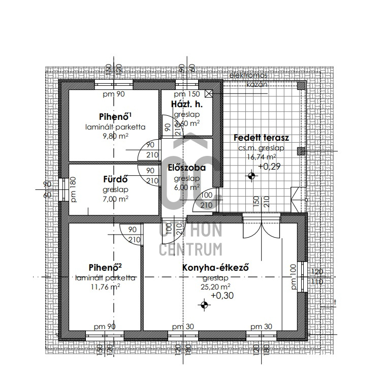
Terület: 63 m2
Erkély / Terasz területe: 496 m2
Hálószobák: 2
Építés éve: Max. 5 éve
Ár: 69 900 000 Ft
Ár/m2: 225 E Ft/m2
Emelet: 1+ emelet
Leírás
Albertirsán, csendes és nyugodt környezetben, a strandtól pár perces sétára kínálunk eladásra egy 3 éve épült, modern kialakítású családi házat.

Az ingatlan praktikus elrendezésű: tágas, világos nappali, két kényelmes hálószoba, valamint korszerű fürdőszoba és konyha várja új tulajdonosát. A 500 nm-es telek ideális pihenésre, kertészkedésre vagy a
...
+ Tovább olvasom
Lokáció
2730 Albertirsa