Nyelv:
Kezdd el!
Eladó
Kiadó
Tulajdonos vagyok
Ingatlanos vagyok
Zoomlla-funkciók
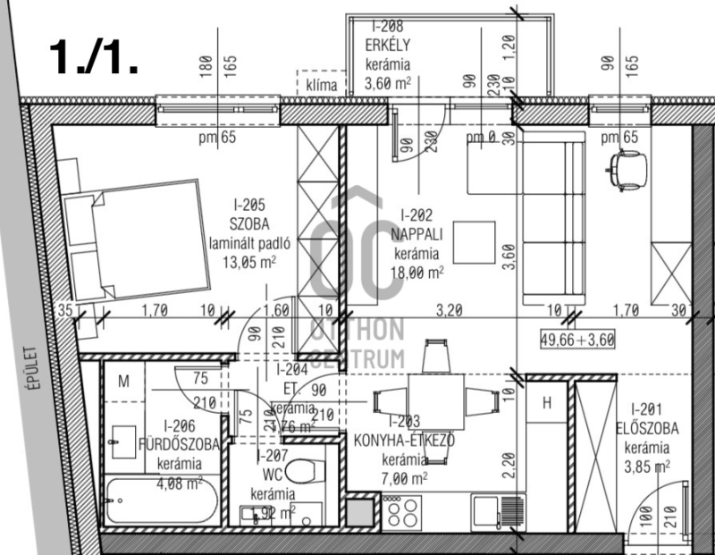
Eladó lakás Nyíregyháza 50m2
4400 Nyíregyháza
ID: 103346
53.3 M Ft (1.1 M Ft/m2)
Terület
50 m2
Hálószobák
2
Ingatlan adatok
Típus: Lakás
Terület: 50 m2
Hálószobák: 2
Építés éve: Max. 5 éve
Ár: 53 260 000 Ft
Ár/m2: 1.1 M Ft/m2
Emelet: Felső szint
Kilátás az ingatlanból: Város
Leírás
Eladó 1 szobás, tágas amerikai konyhás nappalival rendelkező lakás, külön fürdőszobával és WC-vel. Minden lakáshoz saját erkély tartozik, amely kellemes kikapcsolódást nyújt. A szobákban laminált parketta, míg a többi helyiségben járólap burkolat található. A földszinten közös tároló áll a lakók rendelkezésére, az udvar közösen használható. Garázs ...
+ Tovább olvasom
Jellemzők
  • Erkély
Lokáció
4400 Nyíregyháza