Nyelv:
Kezdd el!
Eladó
Kiadó
Tulajdonos vagyok
Ingatlanos vagyok
Zoomlla-funkciók
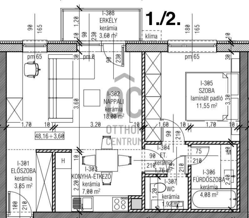
Eladó lakás Nyíregyháza 48m2
4400 Nyíregyháza
ID: 103345
51.8 M Ft (1.1 M Ft/m2)
Terület
48 m2
Hálószobák
2
Ingatlan adatok
Típus: Lakás
Terület: 48 m2
Hálószobák: 2
Építés éve: Max. 5 éve
Ár: 51 760 000 Ft
Ár/m2: 1.1 M Ft/m2
Emelet: Felső szint
Kilátás az ingatlanból: Belső udvar
Leírás
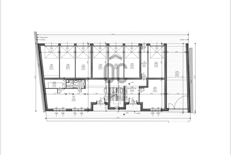
Projekt bemutatása

Új építésű, amerikai konyhás, 1 szobás lakások eladók Nyíregyháza belvárosában, a Hatzel tér közelében! A 10 lakásos társasház csendes utcában épül, erkélyes lakásokkal, garázs- és udvari beálló lehetőséggel. 30-as szigetelés, 3 rétegű nyílászárók, padlófűtés, klíma – minden adott a modern élethez.

Átadás: 2026 nyár. Foglaljon
...
+ Tovább olvasom
Jellemzők
  • Erkély
Lokáció
4400 Nyíregyháza