Nyelv:
Kezdd el!
Eladó
Kiadó
Tulajdonos vagyok
Ingatlanos vagyok
Zoomlla-funkciók
Eladó ház Sopron 385m2
9400 Sopron
ID: 103327
229 M Ft (372 E Ft/m2)
Terület
615 m2
Hálószobák
8
Ingatlan adatok
Típus: Ház
Terület: 385 m2
Erkély / Terasz területe: 459 m2
Hálószobák: 8
Építés éve: 20+ éve
Ár: 229 000 000 Ft
Ár/m2: 372 E Ft/m2
Emelet: 1+ emelet
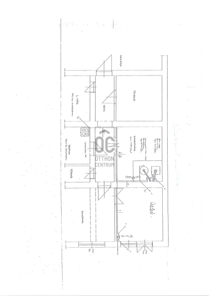
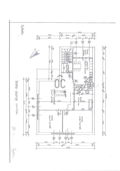
Leírás
Egy különleges lehetőséget kínálunk nagycsaládosok vagy összeköltözők számára, akik álmaik otthonát keresik a gyönyörű Sopronban, a csendes és zöld Egeredi dombon. Az ingatlan alapterülete 385 négyzetméter, míg a telek mérete 459 négyzetméter és egy sarok telken helyezkedik el így két utca felől is megközelíthető.

A ház három szintes, három különá
...
+ Tovább olvasom
Lokáció
9400 Sopron