Nyelv:
Kezdd el!
Eladó
Kiadó
Tulajdonos vagyok
Ingatlanos vagyok
Zoomlla-funkciók
Eladó ház Budapest XVII. 90m2
1171 Budapest
ID: 103305
74.9 M Ft (141 E Ft/m2)
Terület
533 m2
Hálószobák
1+4
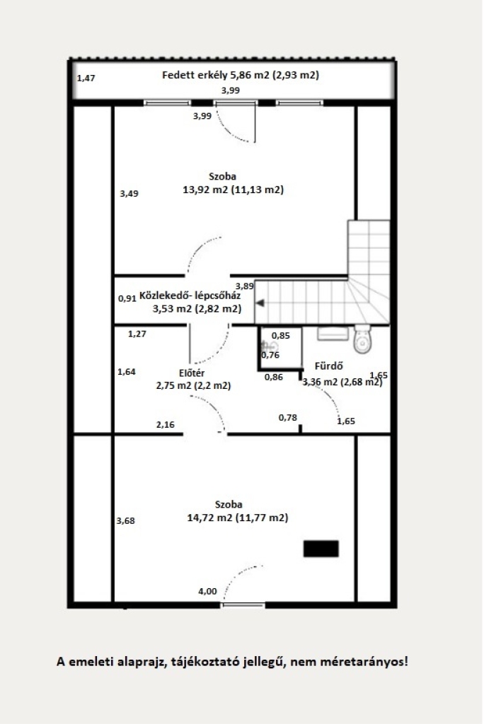
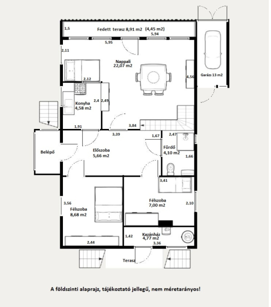
Ingatlan adatok
Típus: Ház
Terület: 90 m2
Erkély / Terasz területe: 885 m2
Hálószobák: 1+4
Építés éve: 20+ éve
Ár: 74 900 000 Ft
Ár/m2: 141 E Ft/m2
Garázs: 1
Emelet: 1+ emelet
Kilátás az ingatlanból: Park
Leírás
CSAK NÁLUNK!

Családi paradicsom Rákoscsabán – nagy telek, nyugalom és tágas lehetőségek!


Eladó egy igazi családi fészek Rákoscsaba egyik legnyugodtabb utcájában, aszfaltos úton könnyen megközelíthető helyen.

A 885 m²-es telken egy 1+4 félszobás, nettó 90,07 m² bruttó 109,73 m² dupla komfortos, önálló belső két szintes családi ház várja új lak
...
+ Tovább olvasom
Lokáció
1171 Budapest