Nyelv:
Kezdd el!
Eladó
Kiadó
Tulajdonos vagyok
Ingatlanos vagyok
Zoomlla-funkciók
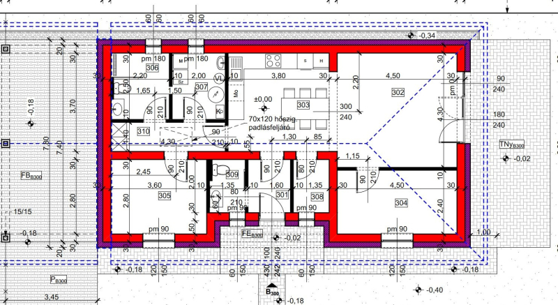
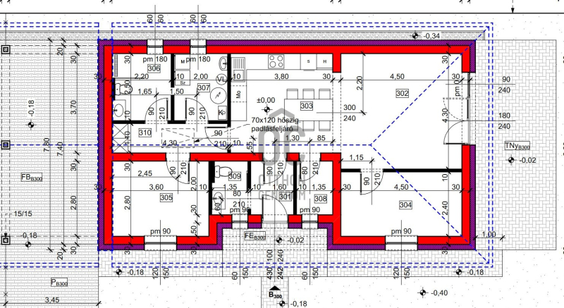
Eladó ház Gencsapáti 78m2
9721 Gencsapáti
ID: 103280
72.9 M Ft (126 E Ft/m2)
Terület
578 m2
Hálószobák
3
Ingatlan adatok
Típus: Ház
Terület: 78 m2
Erkély / Terasz területe: 1000 m2
Hálószobák: 3
Építés éve: Max. 5 éve
Ár: 72 900 000 Ft
Ár/m2: 126 E Ft/m2
Emelet: 1+ emelet
Leírás
Az ingatlanpiac dinamikus világában különösen fontos, hogy megtalálja az Ön számára ideális otthont - verhetetlen áron - árgaranciával!
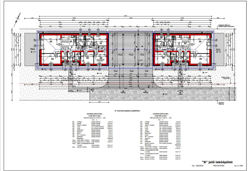
A mi ajánlatunk a Nyírfaliget Lakópark !!
A Szombathellyel már szinte összenőtt településen - az első ütem sikerére alapozva - egy jelentős, hosszútávú beruházás indul, ahol egy 6600 nm-es telken 4 lakóegység ker
...
+ Tovább olvasom
Lokáció
9721 Gencsapáti