Nyelv:
Kezdd el!
Eladó
Kiadó
Tulajdonos vagyok
Ingatlanos vagyok
Zoomlla-funkciók
Eladó ház Siófok 450m2
8600 Siófok
ID: 103278
689 M Ft (1.5 M Ft/m2)
Terület
450 m2
Hálószobák
0
Ingatlan adatok
Típus:
Terület: 450 m2
Hálószobák: 0
Építés éve: Max. 20 éve
Ár: 689 000 000 Ft
Ár/m2: 1.5 M Ft/m2
Emelet: Felső szint
Leírás
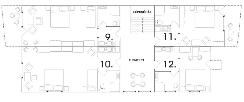
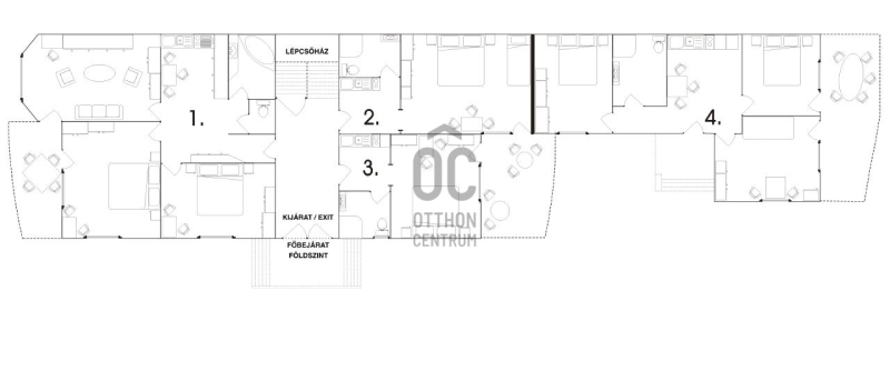
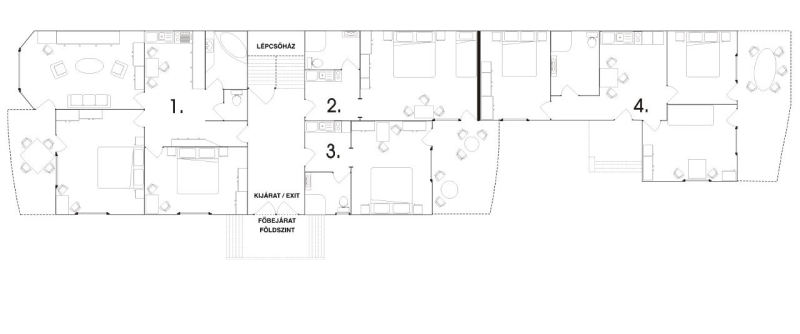
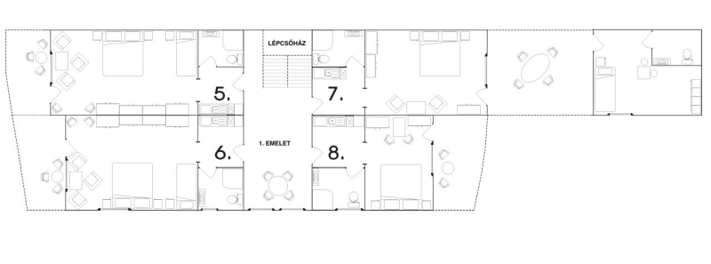
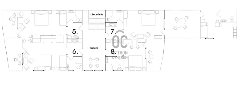
Siófok-Aranyparton, a város turisztikai központjában, impozáns villák szomszédságában eladásra kínálunk egy jól működő, kifogástalan állapotú apartmanszállodát,
amely jelenleg is sikeresen üzemel és kiváló lehetőséget biztosít mind a vendéglátás, mind a hosszú távú befektetés iránt érdeklődők számára.

*12 felszerelt, légkondicionált apartman
*Kam
...
+ Tovább olvasom
Lokáció
8600 Siófok