Nyelv:
Kezdd el!
Eladó
Kiadó
Tulajdonos vagyok
Ingatlanos vagyok
Zoomlla-funkciók
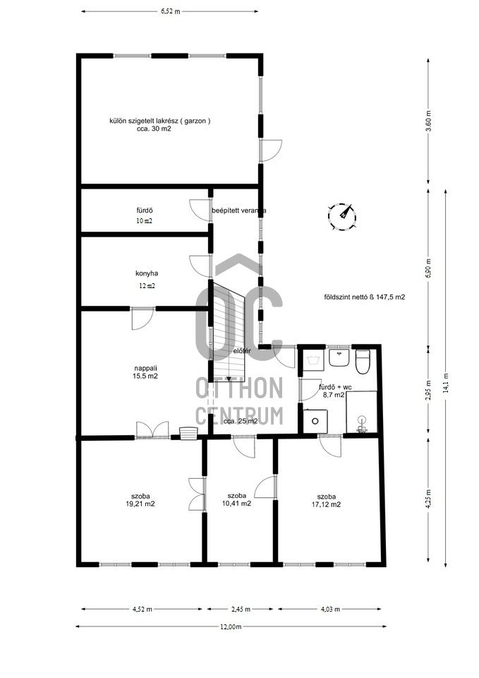
Eladó ház Budapest XIX. 220m2
1194 Budapest
ID: 103229
149.9 M Ft (307 E Ft/m2)
Terület
488 m2
Hálószobák
8
Ingatlan adatok
Típus: Ház
Terület: 220 m2
Erkély / Terasz területe: 535 m2
Hálószobák: 8
Építés éve: 20+ éve
Ár: 149 900 000 Ft
Ár/m2: 307 E Ft/m2
Emelet: 1+ emelet
Leírás
XIX. kerületben az Endresz György utcában eladó egy 535 m2-es telken lévő 1928-ban épült 1998-ban és 2005-ben átépített/felújított 220 m2 össz. hasznos területű 147 m2 alapterületű 8 szobás családiház. Az állapota a felújítások ellenére jelenleg felújítandó. A 98-as átépítés során a veranda beépítésre került. A tetőtér beépítéséhez a statikai szakv...
+ Tovább olvasom
Lokáció
1194 Budapest