Nyelv:
Kezdd el!
Eladó
Kiadó
Tulajdonos vagyok
Ingatlanos vagyok
Zoomlla-funkciók
Eladó ház Zalaegerszeg 18m2
8900 Zalaegerszeg
ID: 103136
11.2 M Ft (622 E Ft/m2)
Terület
18 m2
Hálószobák
0
Ingatlan adatok
Típus:
Terület: 18 m2
Hálószobák: 0
Építés éve: Max. 5 éve
Ár: 11 200 000 Ft
Ár/m2: 622 E Ft/m2
Emelet: Felső szint
Leírás
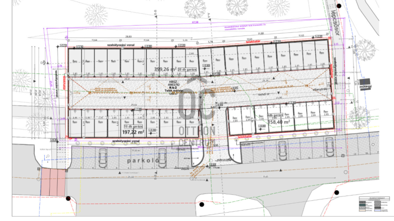
Korszerű előregyártott beton elemekből készülő, modern stílusú garázsok LANDORHEGY szívében.

Jellemzők:
- Hőszigetelt oldalfalakkal és lapos tetővel, szekcionált, motoros garázskapukkal.
- Egységes, 17,68 nm alapterülettel.
- A garázsok közötti elválasztó falak variálhatóak, illetve nagyobb terek létrehozásához kivehetőek, így dupla garázsok is lé
...
+ Tovább olvasom
Lokáció
8900 Zalaegerszeg