Nyelv:
Kezdd el!
Eladó
Kiadó
Tulajdonos vagyok
Ingatlanos vagyok
Zoomlla-funkciók
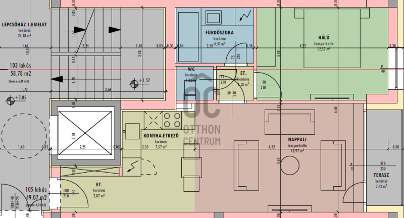
Eladó lakás Nyíregyháza Belváros 51m2..
4400 Nyíregyháza
ID: 103096
56 M Ft (1.1 M Ft/m2)
Terület
51 m2
Hálószobák
2
Ingatlan adatok
Típus: Lakás
Terület: 51 m2
Hálószobák: 2
Építés éve: Max. 5 éve
Ár: 56 020 000 Ft
Ár/m2: 1.1 M Ft/m2
Emelet: Felső szint
Kilátás az ingatlanból: Város
Leírás
Eladásra kínálunk egy 49,07 m²-es lakást 3,72 m²-es terasszal, mely közvetlen kapcsolatot biztosít a zárt, privát udvari kerthez. Az ingatlan ideális választás mindazok számára, akik a modern technológiát, az energiahatékonyságot és a városközpont közelségét egyaránt fontosnak tartják.

A praktikus elrendezésű lakótérben tágas nappali-étkező-konyha
...
+ Tovább olvasom
Lokáció
4400 Nyíregyháza