Nyelv:
Kezdd el!
Eladó
Kiadó
Tulajdonos vagyok
Ingatlanos vagyok
Zoomlla-funkciók
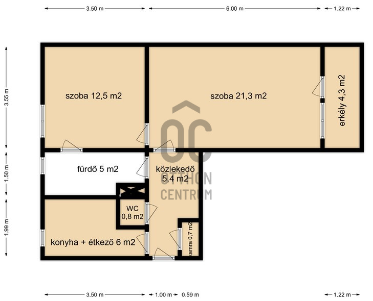
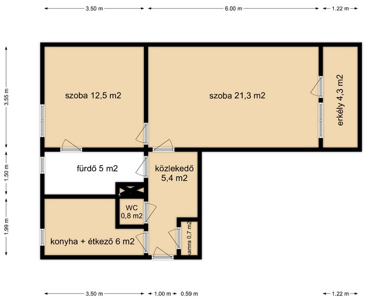
Eladó lakás Nagykanizsa 54m2
8800 Nagykanizsa
ID: 103057
24.8 M Ft (459 E Ft/m2)
Terület
54 m2
Hálószobák
2
Ingatlan adatok
Típus: Lakás
Terület: 54 m2
Hálószobák: 2
Építés éve: 20+ éve
Ár: 24 800 000 Ft
Ár/m2: 459 E Ft/m2
Emelet: Felső szint
Kilátás az ingatlanból: Város
Leírás
Nagykanizsán a Garay utcában kínálok megvételre egy jó állapotú, 54 m2-es lakást, amely ideális választás lehet családok, fiatal párok vagy befektetők számára.
Az ingatlan jellemzői:
- A 54 m2-es lakás kialakítása rendkívül praktikus, a tágas nappali mellett egy hálószoba, konyha, kamra, fürdőszoba, WC, erkély található.
- Hőszigetelt üvegezésű, m
...
+ Tovább olvasom
Jellemzők
  • Erkély
Lokáció
8800 Nagykanizsa