Nyelv:
Kezdd el!
Eladó
Kiadó
Tulajdonos vagyok
Ingatlanos vagyok
Zoomlla-funkciók
Eladó ház Gyönk 109m2
7064 Gyönk
ID: 102994
14 M Ft (21 E Ft/m2)
Terület
681 m2
Hálószobák
4
Ingatlan adatok
Típus: Ház
Terület: 109 m2
Erkély / Terasz területe: 1143 m2
Hálószobák: 4
Építés éve: 20+ éve
Ár: 14 000 000 Ft
Ár/m2: 21 E Ft/m2
Emelet: 1+ emelet
Leírás
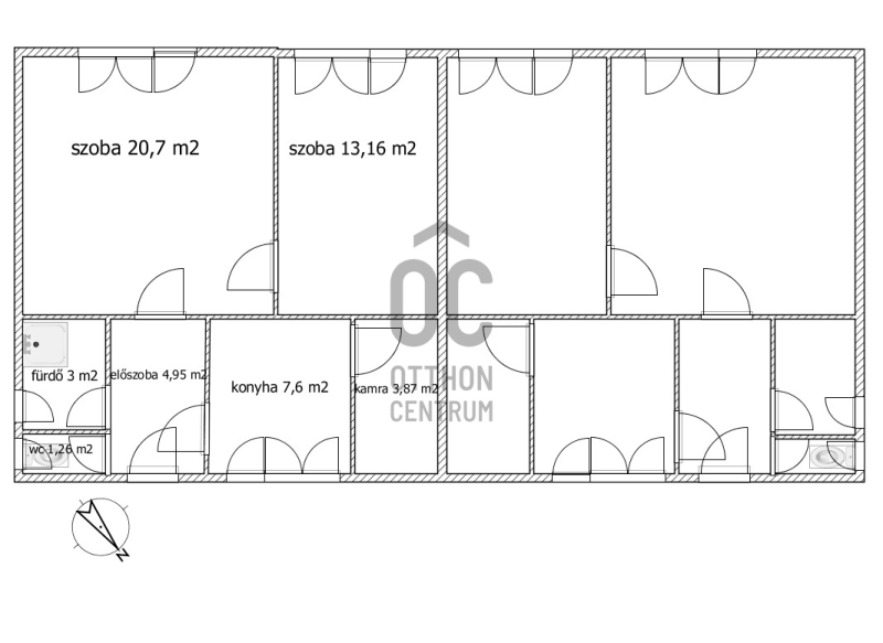
Az eladó ikerház két lakásból áll, amelyek egymás tükörképei. Igény szerint egybe nyithatóak.
A ház tégla falazattal, cserép tetővel, beton aljzattal és betontálcás födémmel rendelkezik.
Mindkét házrészben két szoba, konyha, fürdő, wc és kamra található.
Fűtése jelenleg kályhával lehetséges.
Aszfaltozott úton megközelíthető. Úzd előtt kell balra fo
...
+ Tovább olvasom
Lokáció
7064 Gyönk