Nyelv:
Kezdd el!
Eladó
Kiadó
Tulajdonos vagyok
Ingatlanos vagyok
Zoomlla-funkciók
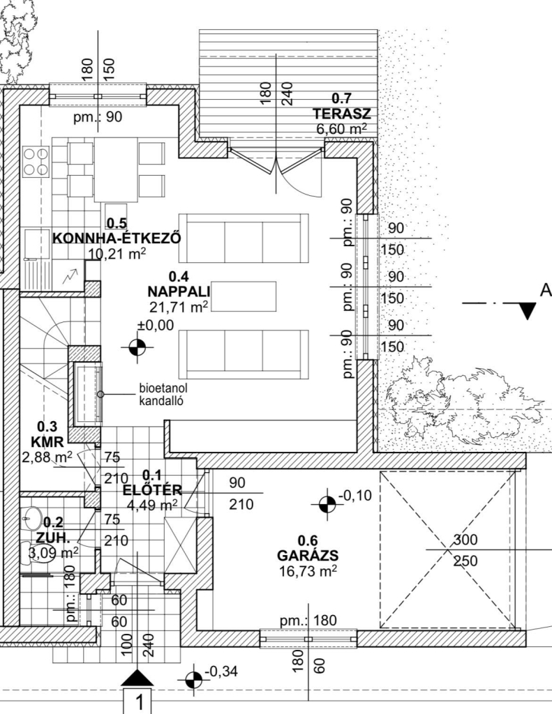
Eladó ház Budapest XVI. 120m2
1165 Budapest
ID: 102979
179 M Ft (743 E Ft/m2)
Terület
241 m2
Hálószobák
4
Ingatlan adatok
Típus: Ház
Terület: 120 m2
Erkély / Terasz területe: 241 m2
Hálószobák: 4
Építés éve: Max. 5 éve
Ár: 179 000 000 Ft
Ár/m2: 743 E Ft/m2
Garázs: 1
Emelet: 1+ emelet
Kilátás az ingatlanból: Park
Leírás
Eladó modern, napelemes sorház, szinte nulla rezsivel Mátyásföld legszebb részén – tehermentes, azonnal költözhető!

Mátyásföld-Petőfi kertben természetvédelmi övezet mellett, eladó egy 6 éve épült, világos, korszerű, dél-nyugati fekvésű sorházi ingatlan.

A 98 nm-es lakótér mellett 17 nm-es fűtött garázs, 5 nm erkély, a földszinten 20 nm-es megnag
...
+ Tovább olvasom
Lokáció
1165 Budapest