Nyelv:
Kezdd el!
Eladó
Kiadó
Tulajdonos vagyok
Ingatlanos vagyok
Zoomlla-funkciók
Eladó lakás Budapest XVI. Rákosszentmi..
1161 Budapest
ID: 101907
127 M Ft (1.2 M Ft/m2)
Terület
103 m2
Hálószobák
5
Ingatlan adatok
Típus: Lakás
Terület: 103 m2
Hálószobák: 5
Építés éve: Max. 5 éve
Ár: 127 000 000 Ft
Ár/m2: 1.2 M Ft/m2
Emelet: Felső szint
Kilátás az ingatlanból: Park
Leírás
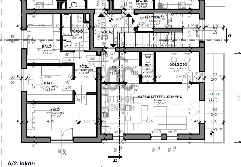
XVI kerület közkedvelt, Zuglóhoz közeli részén eladó új építésű lakások! Egymás mellett épül 2db öt lakásos társasház, egy zöld övezeti új építésű modern környezetben. Ez a lakás az A épület első emeletén található, összesen öt szobás, erkélyes ingatlan, ez ritkaságnak számít.

A lakásokhoz külön vásárolható garázsbeálló tárolóval, amiknek az együt
...
+ Tovább olvasom
Jellemzők
  • Erkély
Lokáció
1161 Budapest