Nyelv:
Kezdd el!
Eladó
Kiadó
Tulajdonos vagyok
Ingatlanos vagyok
Zoomlla-funkciók
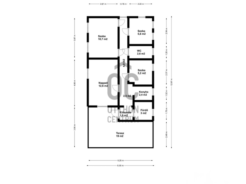
Eladó ház Velence 51m2
2481 Velence
ID: 101765
56.5 M Ft (173 E Ft/m2)
Terület
326 m2
Hálószobák
4
Ingatlan adatok
Típus:
Terület: 51 m2
Erkély / Terasz területe: 550 m2
Hálószobák: 4
Építés éve: 20+ éve
Ár: 56 500 000 Ft
Ár/m2: 173 E Ft/m2
Emelet: 1+ emelet
Leírás
Eladó nyaraló Velencén!
Eladó Velencén egy teljes körűen felújított, azonnal költözhető ház, amely kétállásos fedett garázzsal és kiépített biztonsági rendszerrel várja új tulajdonosát.

Csendes, nyugodt lakóövezetben található az ingatlan, amely ideális lehet állandó otthonnak is – bár jelenleg hétvégi házként szerepel a tulajdoni lapon, egyszerűe
...
+ Tovább olvasom
Lokáció
2481 Velence