Nyelv:
Kezdd el!
Eladó
Kiadó
Tulajdonos vagyok
Ingatlanos vagyok
Zoomlla-funkciók
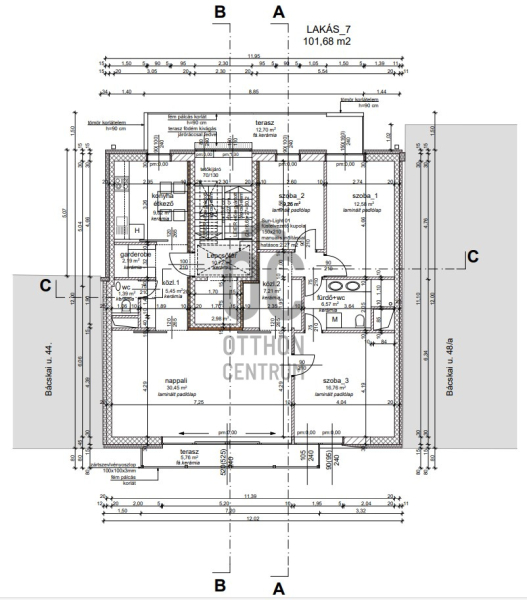
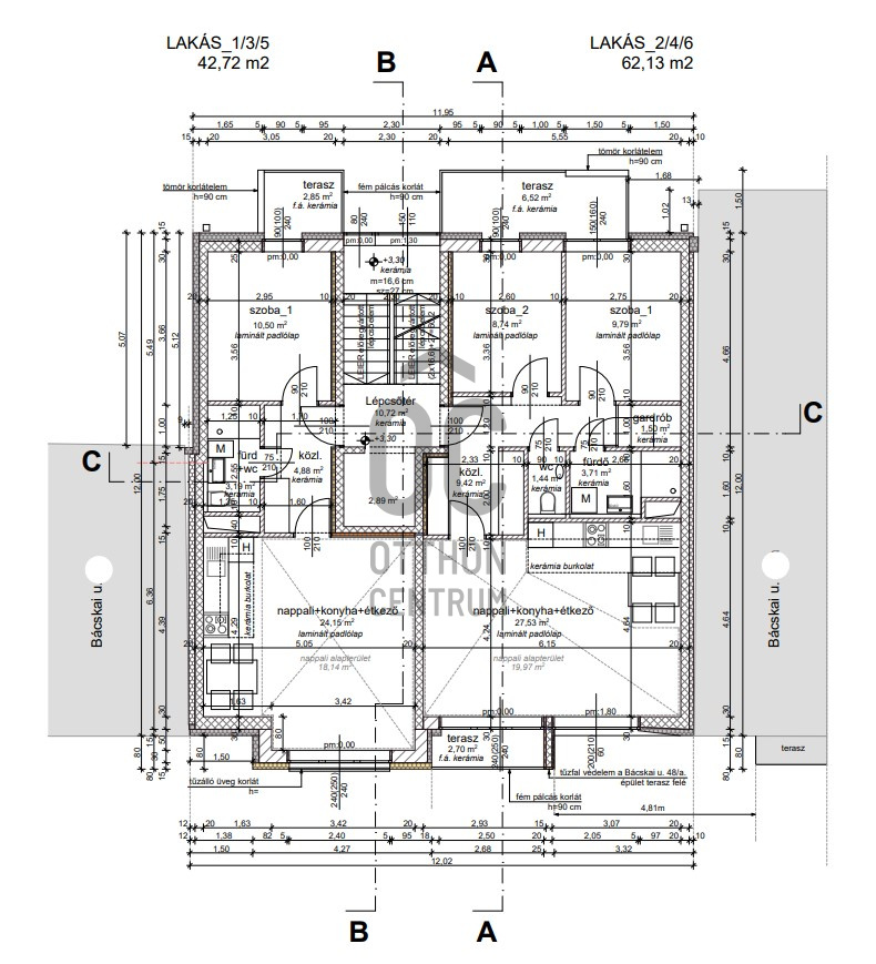
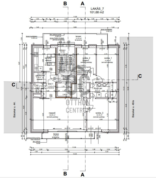
Eladó lakás Budapest XIV. 28m2
1145 Budapest
ID: 100154
54.7 M Ft (2 M Ft/m2)
Terület
28 m2
Hálószobák
1
Ingatlan adatok
Típus: Lakás
Terület: 28 m2
Hálószobák: 1
Építés éve: Max. 5 éve
Ár: 54 705 000 Ft
Ár/m2: 2 M Ft/m2
Emelet: Felső szint
Kilátás az ingatlanból: Belső udvar
Leírás
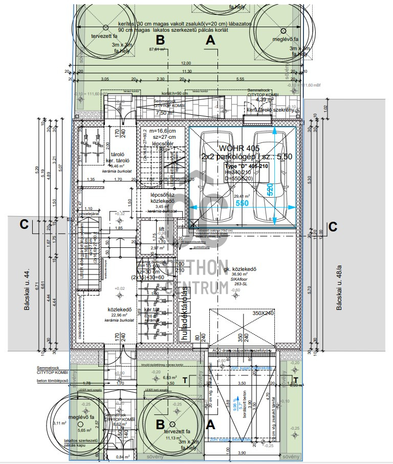
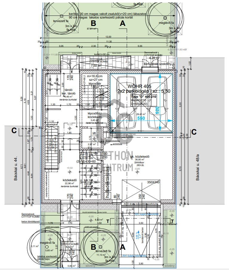
Herminamező (Budapest XIV. kerület, Zugló) zöldövezeti központjában, csodás, ősfás környezetben KIS LAKÁSSZÁMÚ társasházban kínálok eladásra egy ERKÉLYES stúdiólakást most épülő társasházban, magas műszaki tartalommal.

Az épületet csendes, szinte forgalommentes, egyirányú utcában alakítják ki, a lakás a belső kertre néz.
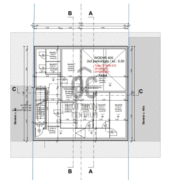
Az ötszintes épület pinces
...
+ Tovább olvasom
Jellemzők
  • Erkély
Lokáció
1145 Budapest