Nyelv:
Kezdd el!
Eladó
Kiadó
Tulajdonos vagyok
Ingatlanos vagyok
Zoomlla-funkciók
Eladó lakás Budapest X. Óhegy 58m2
1103 Budapest
ID: 100125
69.9 M Ft (1.2 M Ft/m2)
Terület
58 m2
Hálószobák
2
Ingatlan adatok
Típus: Lakás
Terület: 58 m2
Hálószobák: 2
Építés éve: Max. 20 éve
Ár: 69 900 000 Ft
Ár/m2: 1.2 M Ft/m2
Emelet: 1+ emelet
Kilátás az ingatlanból: Park
Leírás
KŐBÁNYA KÖZKEDVELT RÉSZÉN, ÓHEGYEN , OTTHONNAK ÉS BEFEKTETÉSNEK IS TÖKÉLETES VÁLASZTÁS! KIVÁLÓ ÁR-ÉRTÉK ARÁNY!!!

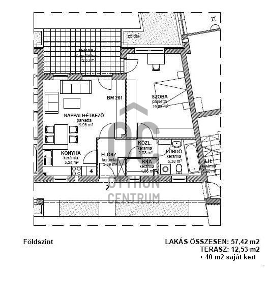
Szuper adottságokkal kínálunk eladásra, Kőbányán, azon belül Óhegyen, 2009-ben épült, 10 lakásból álló társasházban, egy 58nm-es, földszinti, nagy terasszal, saját kertkapcsolattal és önálló garázzsal rendelkező, ingatlant.
Csak a
...
+ Tovább olvasom
Lokáció
1103 Budapest