Nyelv:
Kezdd el!
Eladó
Kiadó
Tulajdonos vagyok
Ingatlanos vagyok
Zoomlla-funkciók
Eladó lakás Budapest XIV. Kiszugló 116..
1149 Budapest
ID: 100059
117 M Ft (1 M Ft/m2)
Terület
116 m2
Hálószobák
4
Ingatlan adatok
Típus: Lakás
Terület: 116 m2
Hálószobák: 4
Építés éve: 20+ éve
Ár: 117 000 000 Ft
Ár/m2: 1 M Ft/m2
Emelet: 1+ emelet
Kilátás az ingatlanból: Város
Leírás
Nagycsaládosok, Összeköltözők vagy akár Vállalkozók részére is kiváló lehetőség!
Két bejáratú, duplakomfortos, téglalakás eladó ZUGLÓBAN!
Jellemzők :
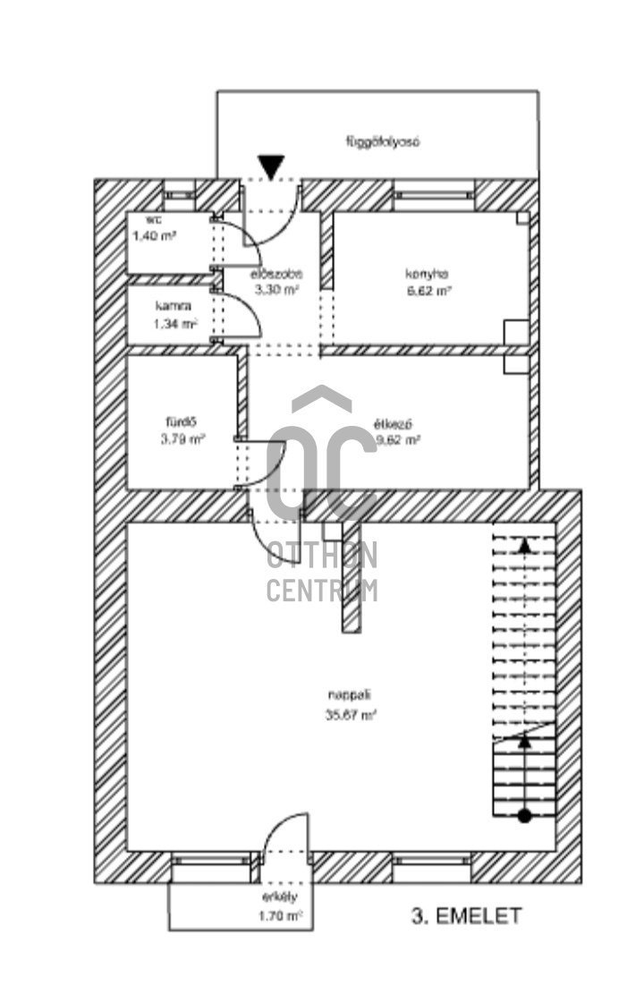
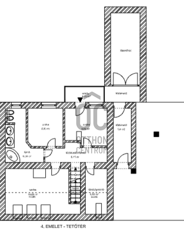
- 116nm, belső kétszintes,
- a lakás a 3. és 4. emeleti szinten fekszik, mivel félnyereg-tetős, így csak 1 szoba + a tároló helyiségben vannak ferde falak,
- 2 fürdőszoba,
- 3 különnyíló szoba, + tág
...
+ Tovább olvasom
Jellemzők
  • Erkély
Lokáció
1149 Budapest