Nyelv:
Kezdd el!
Eladó
Kiadó
Tulajdonos vagyok
Ingatlanos vagyok
Zoomlla-funkciók
Kiadó ház Pécel 1328m2
2119 Pécel
ID: 100018
1.5 M Ft /hó
Terület
1328 m2
Hálószobák
0
Ingatlan adatok
Típus:
Terület: 1328 m2
Hálószobák: 0
Építés éve: 20+ éve
Ár: 1 500 000 Ft
Emelet: 1+ emelet
Beköltözhető ekkortól: Elérhető
Leírás
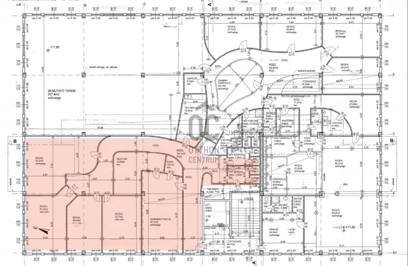
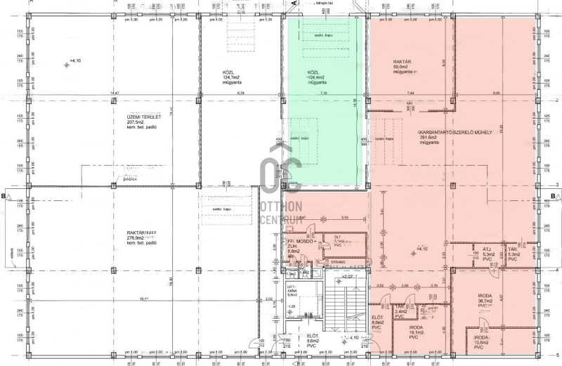
Pécelen, az M0-ás lehajtójától mindössze 300 méterre, kiemelkedő elhelyezkedéssel, a hatalmas, felújított üzletházban iroda-, raktár- és műhelyhelyiségek, rengeteg tevékenységre alkalmas tágas helyiségek kiadók!

Az ingatlan kiváló közlekedési adottságokkal rendelkezik: az M0 autóút közelségének köszönhetően nagy teherautókkal és kamionokkal is eng
...
+ Tovább olvasom
Lokáció
2119 Pécel